Larry Stein Oklahoma County Assessor (405) 713-1200 - Public Access System
Home Contact Us Guest Book Map Search New Search
Building Detail Results - Screen Produced   3/26/2026 6:13:39 AM 
 Account #:  R049641120 Bldg #1
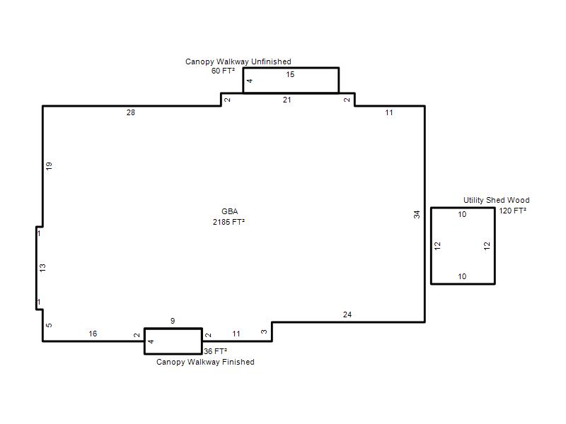
Sketch

 Building #: 1
 Built As:  Fast Food Restaurant
 # of Stories:  1 Stories
 Square Feet:  2,185
 Year Built:  2024
 Remodel Year:   
 Building Name:  HteaO
 Alt Land Use Desc:  Platted Commercial
 Quality Desc:  Good
 Bldg Frame Description:  Wood Frame
 Foundation Desc:  Slab
 Bldg Exterior:  Frame Stucco
 Roof Type:  Flat
 Roof Cover:   Built Up Rock
 Avg Floor Height:  12
 Percent Sprinkled:  100
 Bldg Interior:  
 Total Rooms:   
 # of Units w/Bedrooms: # of units ( ) with   Bedrooms
 # of Baths:  ( )-Full, ( )-3/4, ( )-half
 HVAC Type:  Package Unit
 # of Fire Places:   
 Percent Heated:  100
 Physical Condition:  Very Good
 # of Res Units:   
 # of Comm Units:  1
 Commercial Desc:   
 Occ Type:  0349
 Commercial Class:  C
 MFG Home Length:   
 MFG Home Width:   

Photos

2024 

2023 

Garage, Porch, Basement, Storage, Utility etc.  (GLA=Gross Living Area    GBA=Gross Bldg Area)
Account # Feature Description Sqft/Area Number of Stories

R049641120

 GBA

 GBA

2,185 

1

Additional Details
Account #: Bldg # Description Qty # Of Units Description

R049641120

1

Canopy Walkway Finished

1

36 

Square Feet

R049641120

1

Canopy Walkway Unfinished

1

60 

Square Feet

R049641120

1

Drive-up Window Narrow Bay

1

Units

R049641120

1

Dumpster Enclosure

1

Units

R049641120

1

Fence Wood CM 6`

1

46 

Linear Feet

R049641120

1

Retaining Wall Conc 1`-2` high

1

72 

Linear Feet

R049641120

1

Retaining Wall Conc 2`-4` high

1

266 

Linear Feet

R049641120

1

Utility Shed Wood

1

120 

Square Feet

R049641120

1

Yard Paving Concrete Unsketched

1

13,498 

Square Feet