Larry Stein Oklahoma County Assessor (405) 713-1200 - Public Access System
Home Contact Us Guest Book Map Search New Search
Building Detail Results - Screen Produced   4/7/2026 9:57:15 PM 
 Account #:  R133365000 Bldg #1
Sketch

 Building #: 1
 Built As:  Church w/Sunday School
 # of Stories:  1 Stories
 Square Feet:  4,260
 Year Built:  1995
 Remodel Year:   
 Building Name:  CHURCH BLDG
 Alt Land Use Desc:  Churches & Religious Orgs
 Quality Desc:  Fair
 Bldg Frame Description:  Masonry
 Foundation Desc:  Slab
 Bldg Exterior:  
 Roof Type:  Gable
 Roof Cover:   Composition Shingle
 Avg Floor Height:  10
 Percent Sprinkled:  0
 Bldg Interior:  
 Total Rooms:   
 # of Units w/Bedrooms: # of units ( ) with   Bedrooms
 # of Baths:  (0)-Full, (0)-3/4, (0)-half
 HVAC Type:  Package Unit
 # of Fire Places:  0
 Percent Heated:  100
 Physical Condition:  Average
 # of Res Units:  0
 # of Comm Units:  0
 Commercial Desc:   
 Occ Type:  0308
 Commercial Class:  C
 MFG Home Length:  0
 MFG Home Width:  0

Photos

2024 

2024 

2020 

2019 

2012 

2005 

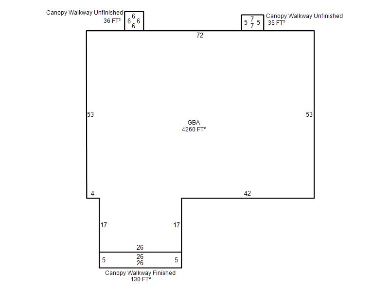
Garage, Porch, Basement, Storage, Utility etc.  (GLA=Gross Living Area    GBA=Gross Bldg Area)
Account # Feature Description Sqft/Area Number of Stories

R133365000

 GBA

 GBA

4,260 

1

Additional Details
Account #: Bldg # Description Qty # Of Units Description

R133365000

1

Canopy Walkway Finished

1

130 

Square Feet

R133365000

1

Canopy Walkway Unfinished

1

35 

Square Feet

R133365000

1

Canopy Walkway Unfinished

1

36 

Square Feet

R133365000

1

Yard Paving Blacktop Unsketched

1

24,743 

Square Feet