Larry Stein Oklahoma County Assessor (405) 713-1200 - Public Access System
Home Contact Us Guest Book Map Search New Search
Building Detail Results - Screen Produced   4/7/2026 9:27:37 PM 
 Account #:  R133363200 Bldg #1
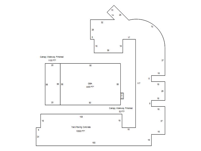
Sketch

 Building #: 1
 Built As:  Office Style Box C or D
 # of Stories:  1 Stories
 Square Feet:  4,400
 Year Built:  2020
 Remodel Year:   
 Building Name:  OKLAHOMA ENVIRONMENTAL SERVICES
 Alt Land Use Desc:  Unplatted Commercial
 Quality Desc:  Good
 Bldg Frame Description:  Metal Frame
 Foundation Desc:  Slab
 Bldg Exterior:  Masonry Face Brick
 Roof Type:  Flat
 Roof Cover:   Elastomeric
 Avg Floor Height:  16
 Percent Sprinkled:   
 Bldg Interior:  
 Total Rooms:   
 # of Units w/Bedrooms: # of units ( ) with   Bedrooms
 # of Baths:  ( )-Full, ( )-3/4, ( )-half
 HVAC Type:  Complete HVAC
 # of Fire Places:   
 Percent Heated:  100
 Physical Condition:  Very Good
 # of Res Units:   
 # of Comm Units:  1
 Commercial Desc:   
 Occ Type:  3447
 Commercial Class:  C
 MFG Home Length:   
 MFG Home Width:   

Photos

2023 

2020 

Garage, Porch, Basement, Storage, Utility etc.  (GLA=Gross Living Area    GBA=Gross Bldg Area)
Account # Feature Description Sqft/Area Number of Stories

R133363200

 GBA

 GBA

4,400 

1

Additional Details
Account #: Bldg # Description Qty # Of Units Description

R133363200

1

Canopy Walkway Finished

1

1,100 

Square Feet

R133363200

1

Canopy Walkway Finished

1

32 

Square Feet

R133363200

1

Fence Wrought Iron CM 6`

1

379 

Linear Feet

R133363200

1

Yard Paving Concrete

1

13,300 

Square Feet