Larry Stein Oklahoma County Assessor (405) 713-1200 - Public Access System
Home Contact Us Guest Book Map Search New Search
Building Detail Results - Screen Produced   4/7/2026 9:22:04 PM 
 Account #:  R133366000 Bldg #1
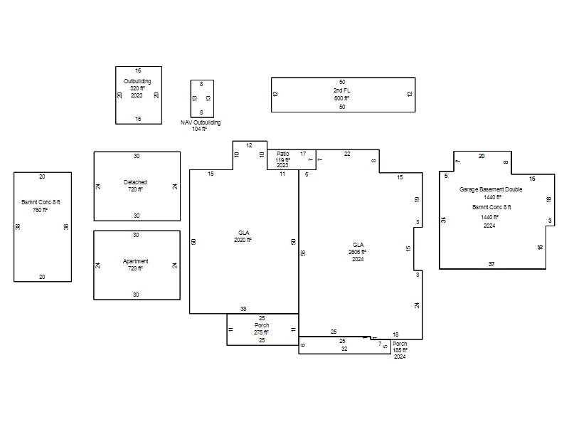
Sketch

 Building #: 1
 Built As:  1½ Story Fin
 # of Stories:  1.5 Stories
 Square Feet:  5,226
 Year Built:  1930
 Remodel Year:  2025
 Building Name:   
 Alt Land Use Desc:  Unplatted Under 5 Acres
 Quality Desc:  Fair
 Bldg Frame Description:  
 Foundation Desc:  Conventional
 Bldg Exterior:  Frame Stucco
 Roof Type:  Gable
 Roof Cover:   Composition Shingle
 Avg Floor Height:  8
 Percent Sprinkled:  0
 Bldg Interior:  Drywall
 Total Rooms:  9
 # of Units w/Bedrooms: # of units (1) with 4 Bedrooms
 # of Baths:  (2)-Full, (1)-3/4, (1)-half
 HVAC Type:  Central Air to Air
 # of Fire Places:  0
 Percent Heated:  100
 Physical Condition:  Average
 # of Res Units:  2
 # of Comm Units:  0
 Commercial Desc:   
 Occ Type:  0100
 Commercial Class:  R
 MFG Home Length:  0
 MFG Home Width:  0

Photos

2024 

2020 

2016 

2012 

2008 

Garage, Porch, Basement, Storage, Utility etc.  (GLA=Gross Living Area    GBA=Gross Bldg Area)
Account # Feature Description Sqft/Area Number of Stories

R133366000

 GLA

 GLA

2,606 

1

R133366000

 GLA

 GLA

2,020 

1

R133366000

 BsmtC8ft

 Bsmnt Conc 8 ft

1,440 

1

R133366000

 GarBsmtDbl

 Garage Basement Double

1,440 

1

R133366000

 BsmtC8ft

 Bsmnt Conc 8 ft

760 

1

R133366000

 GarApartm

 Apartment

720 

1

R133366000

 GarDetach

 Detached

720 

1

R133366000

 GLA2

 2nd FL

600 

1

R133366000

 PorWood R

 Porch

275 

1

R133366000

 PorWood R

 Porch

185 

1

R133366000

 PorOpenSl

 Patio

119 

1

Additional Details
Account #: Bldg # Description Qty # Of Units Description

R133366000

1

Allowance

1

Units

R133366000

1

Laundry Facility

1

Square Feet

R133366000

1

NAV Outbuilding

1

104 

Square Feet

R133366000

1

Outbuilding

1

320 

Square Feet