Larry Stein Oklahoma County Assessor (405) 713-1200 - Public Access System
Home Contact Us Guest Book Map Search New Search
Building Detail Results - Screen Produced   3/5/2026 9:21:50 AM 
 Account #:  R033634788 Bldg #1
Sketch

 Building #: 1
 Built As:  Bank
 # of Stories:  1 Stories
 Square Feet:  5,404
 Year Built:  1928
 Remodel Year:  1976
 Building Name:  HERITAGE FUNERAL HOME
 Alt Land Use Desc:  Platted Commercial
 Quality Desc:  Fair Plus
 Bldg Frame Description:  Masonry
 Foundation Desc:  Slab
 Bldg Exterior:  Masonry Pre-Cast
 Roof Type:  Flat
 Roof Cover:   Composition Roll
 Avg Floor Height:  12
 Percent Sprinkled:  0
 Bldg Interior:  
 Total Rooms:   
 # of Units w/Bedrooms: # of units ( ) with   Bedrooms
 # of Baths:  (0)-Full, (0)-3/4, (0)-half
 HVAC Type:  Package Unit
 # of Fire Places:  0
 Percent Heated:  100
 Physical Condition:  Average
 # of Res Units:  0
 # of Comm Units:  1
 Commercial Desc:   
 Occ Type:  0342
 Commercial Class:  C
 MFG Home Length:  0
 MFG Home Width:  0

Photos

2023 

2019 

2015 

2015 

2011 

2009 

2006 

2005 

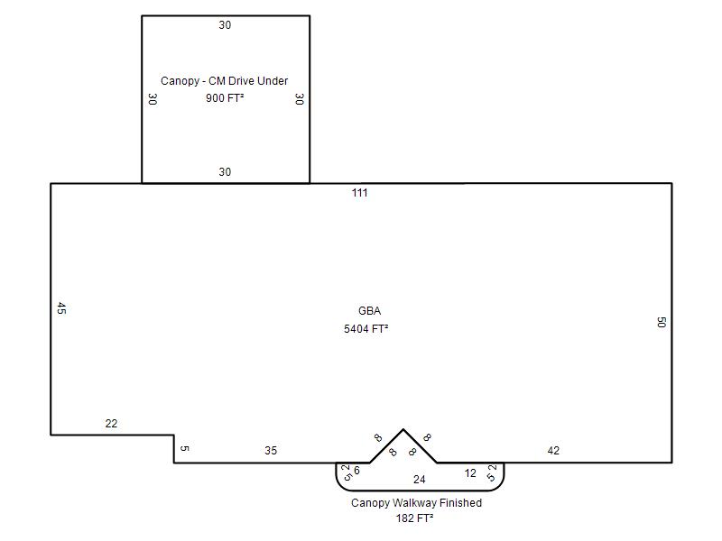
Garage, Porch, Basement, Storage, Utility etc.  (GLA=Gross Living Area    GBA=Gross Bldg Area)
Account # Feature Description Sqft/Area Number of Stories

R033634788

 GBA

 GBA

5,404 

1

Additional Details
Account #: Bldg # Description Qty # Of Units Description

R033634788

1

Canopy - CM Drive Under

1

900 

Square Feet

R033634788

1

Canopy Walkway Finished

1

182 

Square Feet

R033634788

1

Vault, Poured in Place

1

192 

Square Feet

R033634788

1

Yard Paving Concrete Unsketched

1

6,633 

Square Feet