Larry Stein Oklahoma County Assessor (405) 713-1200 - Public Access System
Home Contact Us Guest Book Map Search New Search
Building Detail Results - Screen Produced   3/16/2026 9:19:05 PM 
 Account #:  R060081880 Bldg #1
Sketch

 Building #: 1
 Built As:  Apartment <= 3 Stories
 # of Stories:  2 Stories
 Square Feet:  7,915
 Year Built:  1940
 Remodel Year:  2007
 Building Name:   
 Alt Land Use Desc:  Churches & Religious Orgs
 Quality Desc:  Fair
 Bldg Frame Description:  
 Foundation Desc:  Conventional
 Bldg Exterior:  Frame Siding
 Roof Type:  Gable
 Roof Cover:   Composition Shingle
 Avg Floor Height:  8
 Percent Sprinkled:  0
 Bldg Interior:  Drywall
 Total Rooms:  12
 # of Units w/Bedrooms: # of units (4) with 6 Bedrooms
 # of Baths:  (6)-Full, (0)-3/4, (0)-half
 HVAC Type:  Central Air to Air
 # of Fire Places:  1
 Percent Heated:  100
 Physical Condition:  Average
 # of Res Units:  4
 # of Comm Units:  0
 Commercial Desc:   
 Occ Type:  0116
 Commercial Class:  MLT
 MFG Home Length:  0
 MFG Home Width:  0

Photos

2024 

2020 

2016 

2012 

2008 

2007 

2006 

2005 

2004 

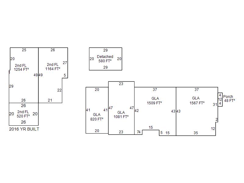
Garage, Porch, Basement, Storage, Utility etc.  (GLA=Gross Living Area    GBA=Gross Bldg Area)
Account # Feature Description Sqft/Area Number of Stories

R060081880

 GLA

 GLA

1,567 

1

R060081880

 GLA

 GLA

1,509 

1

R060081880

 GLA2

 2nd FL

1,254 

1

R060081880

 GLA2

 2nd FL

1,164 

1

R060081880

 GLA

 GLA

1,081 

1

R060081880

 GLA

 GLA

820 

1

R060081880

 GarDetach

 Detached

580 

1

R060081880

 GLA2

 2nd FL

520 

1

R060081880

 PorWood R

 Porch

48 

1

Additional Details
Account #: Bldg # Description Qty # Of Units Description

R060081880

1

Allowance

1

Units

R060081880

1

Laundry Facility

1

Square Feet