Larry Stein Oklahoma County Assessor (405) 713-1200 - Public Access System
Home Contact Us Guest Book Map Search New Search
Building Detail Results - Screen Produced   4/15/2026 4:17:14 PM 
 Account #:  R071621010 Bldg #1
Sketch

 Building #: 1
 Built As:  Condo <= 3 Stories
 # of Stories:  2 Stories
 Square Feet:  1,583
 Year Built:  1975
 Remodel Year:  2014
 Building Name:   
 Alt Land Use Desc:  Platted
 Quality Desc:  Average
 Bldg Frame Description:  
 Foundation Desc:  Slab
 Bldg Exterior:  Frame Masonry Veneer
 Roof Type:  Flat
 Roof Cover:   Built Up Rock
 Avg Floor Height:  8
 Percent Sprinkled:  0
 Bldg Interior:  Drywall
 Total Rooms:  5
 # of Units w/Bedrooms: # of units (1) with 2 Bedrooms
 # of Baths:  (2)-Full, (0)-3/4, (1)-half
 HVAC Type:  Central Air to Air
 # of Fire Places:  1
 Percent Heated:  100
 Physical Condition:  Average
 # of Res Units:  1
 # of Comm Units:  0
 Commercial Desc:   
 Occ Type:  0112
 Commercial Class:  COND
 MFG Home Length:  0
 MFG Home Width:  0

Photos

2023 

2019 

2015 

2011 

2007 

2004 

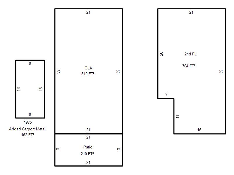
Garage, Porch, Basement, Storage, Utility etc.  (GLA=Gross Living Area    GBA=Gross Bldg Area)
Account # Feature Description Sqft/Area Number of Stories

R071621010

 GLA

 GLA

819 

1

R071621010

 GLA2

 2nd FL

764 

1

R071621010

 PorOpenSl

 Patio

210 

1

Additional Details
Account #: Bldg # Description Qty # Of Units Description

R071621010

1

Added Carport Metal

1

162 

Square Feet

R071621010

1

Allowance

1

Units

R071621010

1

Laundry Facility

1

Square Feet