Larry Stein Oklahoma County Assessor (405) 713-1200 - Public Access System
Home Contact Us Guest Book Map Search New Search
Building Detail Results - Screen Produced   4/14/2026 4:13:26 AM 
 Account #:  R147531145 Bldg #1
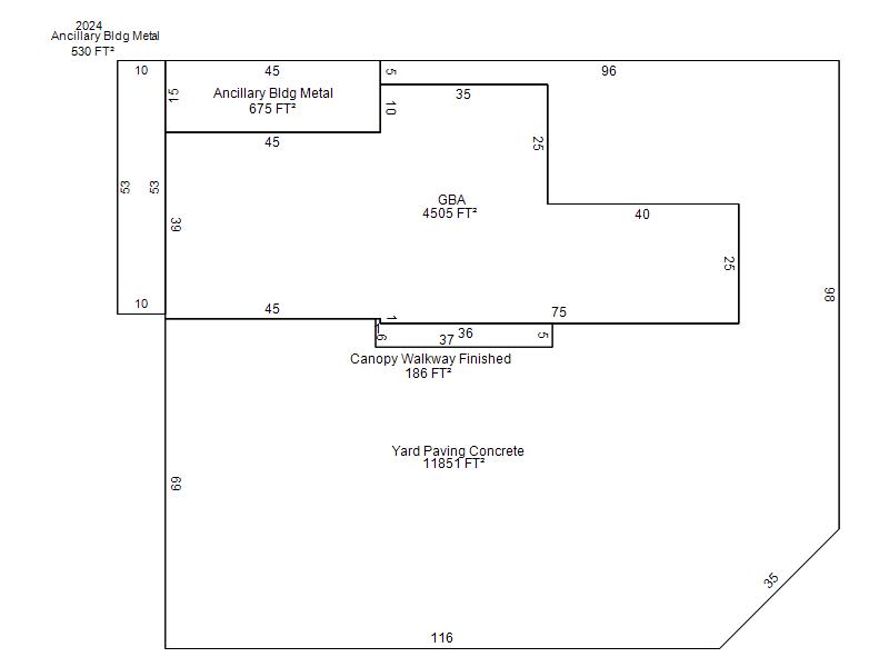
Sketch

 Building #: 1
 Built As:  Service Station
 # of Stories:  1 Stories
 Square Feet:  4,505
 Year Built:  1963
 Remodel Year:   
 Building Name:  NAPA AUTO CENTER
 Alt Land Use Desc:  Platted Commercial
 Quality Desc:  Average
 Bldg Frame Description:  Masonry
 Foundation Desc:  Slab
 Bldg Exterior:  Masonry Face Brick
 Roof Type:  Flat
 Roof Cover:   Built Up Rock
 Avg Floor Height:  16
 Percent Sprinkled:  0
 Bldg Interior:  
 Total Rooms:   
 # of Units w/Bedrooms: # of units ( ) with   Bedrooms
 # of Baths:  (0)-Full, (0)-3/4, (0)-half
 HVAC Type:  Space Heater
 # of Fire Places:  0
 Percent Heated:  100
 Physical Condition:  Average
 # of Res Units:  0
 # of Comm Units:  1
 Commercial Desc:   
 Occ Type:  0325
 Commercial Class:  C
 MFG Home Length:  0
 MFG Home Width:  0

Photos

2024 

2020 

2016 

2016 

2012 

2008 

2008 

2008 

2004 

Garage, Porch, Basement, Storage, Utility etc.  (GLA=Gross Living Area    GBA=Gross Bldg Area)
Account # Feature Description Sqft/Area Number of Stories

R147531145

 GBA

 GBA

4,505 

1

Additional Details
Account #: Bldg # Description Qty # Of Units Description

R147531145

1

Ancillary Bldg Metal

1

530 

Square Feet

R147531145

1

Ancillary Bldg Metal

1

675 

Square Feet

R147531145

1

Canopy Walkway Finished

1

186 

Square Feet

R147531145

1

Yard Paving Concrete

1

11,851 

Square Feet