Larry Stein Oklahoma County Assessor (405) 713-1200 - Public Access System
Home Contact Us Guest Book Map Search New Search
Building Detail Results - Screen Produced   3/24/2026 9:41:02 AM 
 Account #:  R072340750 Bldg #1
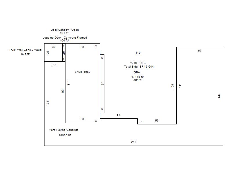
Sketch

 Building #: 1
 Built As:  Office Style Box C or D
 # of Stories:  1 Stories
 Square Feet:  16,644
 Year Built:  1969
 Remodel Year:  1985
 Building Name:  RANAV LAB INC/ JOHN P PERRY, MD
 Alt Land Use Desc:  Platted Commercial
 Quality Desc:  Average
 Bldg Frame Description:  Masonry
 Foundation Desc:  Slab
 Bldg Exterior:  Masonry Face Brick
 Roof Type:  Flat
 Roof Cover:  
 Avg Floor Height:  12
 Percent Sprinkled:  0
 Bldg Interior:  
 Total Rooms:   
 # of Units w/Bedrooms: # of units ( ) with   Bedrooms
 # of Baths:  (0)-Full, (0)-3/4, (0)-half
 HVAC Type:  Package Unit
 # of Fire Places:  0
 Percent Heated:  100
 Physical Condition:  Average
 # of Res Units:  0
 # of Comm Units:  1
 Commercial Desc:   
 Occ Type:  3447
 Commercial Class:  C
 MFG Home Length:  0
 MFG Home Width:  0

Photos

2023 

2019 

2019 

2015 

2011 

2008 

2003 

Garage, Porch, Basement, Storage, Utility etc.  (GLA=Gross Living Area    GBA=Gross Bldg Area)
Account # Feature Description Sqft/Area Number of Stories

R072340750

 GBA

 GBA

17,148 

1

R072340750

 GBA

 GBA

-504 

1

Additional Details
Account #: Bldg # Description Qty # Of Units Description

R072340750

1

Dock Canopy - Open

1

104 

Square Feet

R072340750

1

Dock Levelor

1

Units

R072340750

1

Loading Dock - Concrete Framed

1

104 

Square Feet

R072340750

1

Truck Well Conc 2 Walls

1

676 

Square Feet

R072340750

1

Yard Paving Concrete

1

18,636 

Square Feet