Larry Stein Oklahoma County Assessor (405) 713-1200 - Public Access System
Home Contact Us Guest Book Map Search New Search
Building Detail Results - Screen Produced   4/29/2026 4:31:32 AM 
 Account #:  R142601575 Bldg #1
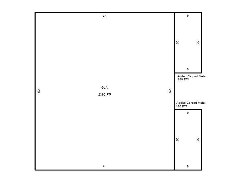
Sketch

 Building #: 1
 Built As:  Apartment <= 3 Stories
 # of Stories:  1 Stories
 Square Feet:  2,392
 Year Built:  1964
 Remodel Year:   
 Building Name:   
 Alt Land Use Desc:  Platted
 Quality Desc:  Average
 Bldg Frame Description:  
 Foundation Desc:  Slab
 Bldg Exterior:  Frame Masonry Veneer
 Roof Type:  Hip
 Roof Cover:   Composition Shingle
 Avg Floor Height:  8
 Percent Sprinkled:  0
 Bldg Interior:  Drywall
 Total Rooms:  2
 # of Units w/Bedrooms: # of units (2) with 1 Bedrooms
 # of Baths:  (4)-Full, (0)-3/4, (0)-half
 HVAC Type:  Central Air to Air
 # of Fire Places:  0
 Percent Heated:  100
 Physical Condition:  Average
 # of Res Units:  4
 # of Comm Units:  0
 Commercial Desc:   
 Occ Type:  0116
 Commercial Class:  MLT
 MFG Home Length:  0
 MFG Home Width:  0
[1/2]

Photos

2023 

2019 

2015 

2012 

2008 

Garage, Porch, Basement, Storage, Utility etc.  (GLA=Gross Living Area    GBA=Gross Bldg Area)
Account # Feature Description Sqft/Area Number of Stories

R142601575

 GLA

 GLA

2,392 

1

Additional Details
Account #: Bldg # Description Qty # Of Units Description

R142601575

1

Added Carport Metal

1

180 

Square Feet

R142601575

1

Allowance

1

Units

R142601575

1

Driveway Slab

1

1,260 

Square Feet

R142601575

1

Laundry Facility

1

Square Feet