Larry Stein Oklahoma County Assessor (405) 713-1200 - Public Access System
Home Contact Us Guest Book Map Search New Search
Building Detail Results - Screen Produced   2/27/2026 12:06:16 PM 
 Account #:  R144931455 Bldg #1
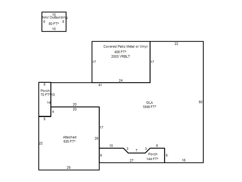
Sketch

 Building #: 1
 Built As:  Ranch 1 Story
 # of Stories:  1 Stories
 Square Feet:  1,849
 Year Built:  1966
 Remodel Year:   
 Building Name:   
 Alt Land Use Desc:  Platted
 Quality Desc:  Average
 Bldg Frame Description:  
 Foundation Desc:  Slab
 Bldg Exterior:  Frame Masonry Veneer
 Roof Type:  Hip
 Roof Cover:   Composition Shingle
 Avg Floor Height:  8
 Percent Sprinkled:  0
 Bldg Interior:  Drywall
 Total Rooms:  6
 # of Units w/Bedrooms: # of units (1) with 3 Bedrooms
 # of Baths:  (1)-Full, (1)-3/4, (0)-half
 HVAC Type:  Central Air to Air
 # of Fire Places:  1
 Percent Heated:  100
 Physical Condition:  Average
 # of Res Units:  1
 # of Comm Units:  0
 Commercial Desc:   
 Occ Type:  0100
 Commercial Class:  R
 MFG Home Length:  0
 MFG Home Width:  0

Photos

2023 

2019 

2015 

2012 

2008 

2004 

Garage, Porch, Basement, Storage, Utility etc.  (GLA=Gross Living Area    GBA=Gross Bldg Area)
Account # Feature Description Sqft/Area Number of Stories

R144931455

 GLA

 GLA

1,849 

1

R144931455

 GarAttach

 Attached

630 

1

R144931455

 PorWood R

 Porch

144 

1

R144931455

 PorWood R

 Porch

70 

1

Additional Details
Account #: Bldg # Description Qty # Of Units Description

R144931455

1

Allowance

1

Units

R144931455

1

Covered Patio Metal or Vinyl

1

408 

Square Feet

R144931455

1

Exempt Storm Shelter

1

Square Feet

R144931455

1

Laundry Facility

1

Square Feet

R144931455

1

NAV Outbuilding

1

80 

Square Feet