Larry Stein Oklahoma County Assessor (405) 713-1200 - Public Access System
Home Contact Us Guest Book Map Search New Search
Building Detail Results - Screen Produced   4/29/2026 2:14:40 AM 
 Account #:  R144932315 Bldg #1
Sketch

 Building #: 1
 Built As:  Apartment <= 3 Stories
 # of Stories:  1.5 Stories
 Square Feet:  3,090
 Year Built:  1961
 Remodel Year:   
 Building Name:   
 Alt Land Use Desc:  Platted
 Quality Desc:  Average
 Bldg Frame Description:  
 Foundation Desc:  Slab
 Bldg Exterior:  Frame Masonry Veneer
 Roof Type:  Gable
 Roof Cover:   Composition Shingle
 Avg Floor Height:  8
 Percent Sprinkled:  0
 Bldg Interior:  Drywall
 Total Rooms:  2
 # of Units w/Bedrooms: # of units (2) with 1 Bedrooms
 # of Baths:  (4)-Full, (0)-3/4, (1)-half
 HVAC Type:  Central Air to Air
 # of Fire Places:  1
 Percent Heated:  100
 Physical Condition:  Average
 # of Res Units:  4
 # of Comm Units:  0
 Commercial Desc:   
 Occ Type:  0116
 Commercial Class:  MLT
 MFG Home Length:  0
 MFG Home Width:  0
[1/2]

Photos

2023 

2019 

2015 

2012 

2008 

2004 

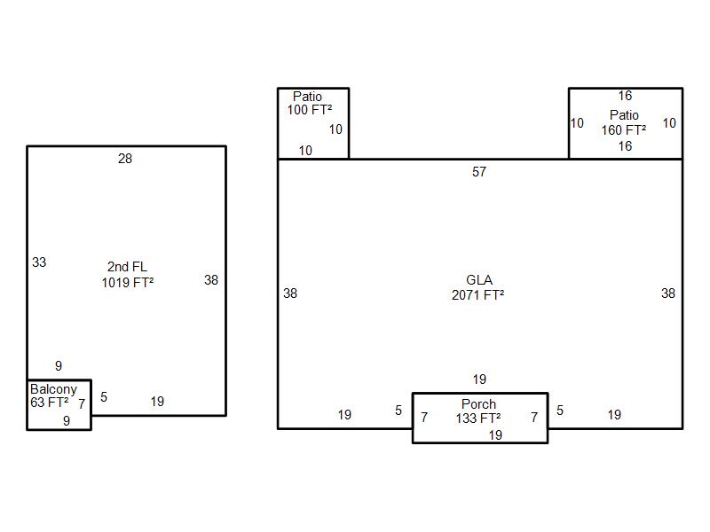
Garage, Porch, Basement, Storage, Utility etc.  (GLA=Gross Living Area    GBA=Gross Bldg Area)
Account # Feature Description Sqft/Area Number of Stories

R144932315

 GLA

 GLA

2,071 

1

R144932315

 GLA2

 2nd FL

1,019 

1

R144932315

 PorOpenSl

 Patio

160 

1

R144932315

 PorWood R

 Porch

133 

1

R144932315

 PorOpenSl

 Patio

100 

1

R144932315

 BalWd F

 Balcony

63 

1

Additional Details
Account #: Bldg # Description Qty # Of Units Description

R144932315

1

Allowance

1

Units

R144932315

1

Driveway Slab

1

2,730 

Square Feet

R144932315

1

Laundry Facility

1

Square Feet