Larry Stein Oklahoma County Assessor (405) 713-1200 - Public Access System
Home Contact Us Guest Book Map Search New Search
Building Detail Results - Screen Produced   2/27/2026 4:49:32 PM 
 Account #:  R147852803 Bldg #1
Sketch

 Building #: 1
 Built As:  Neighborhood Shopping Center
 # of Stories:  1.5 Stories
 Square Feet:  14,100
 Year Built:  1972
 Remodel Year:   
 Building Name:  CLYDE CARTER CENTER
 Alt Land Use Desc:  Unplatted Commercial
 Quality Desc:  Fair
 Bldg Frame Description:  Masonry
 Foundation Desc:  Slab
 Bldg Exterior:  Masonry Concrete Block
 Roof Type:  Flat
 Roof Cover:   Built Up Rock
 Avg Floor Height:  12
 Percent Sprinkled:  0
 Bldg Interior:  
 Total Rooms:   
 # of Units w/Bedrooms: # of units ( ) with   Bedrooms
 # of Baths:  (0)-Full, (0)-3/4, (0)-half
 HVAC Type:  Package Unit
 # of Fire Places:  0
 Percent Heated:  100
 Physical Condition:  Fair
 # of Res Units:  0
 # of Comm Units:  6
 Commercial Desc:   
 Occ Type:  0412
 Commercial Class:  C
 MFG Home Length:  0
 MFG Home Width:  0

Photos

2022 

2018 

2014 

2010 

2005 

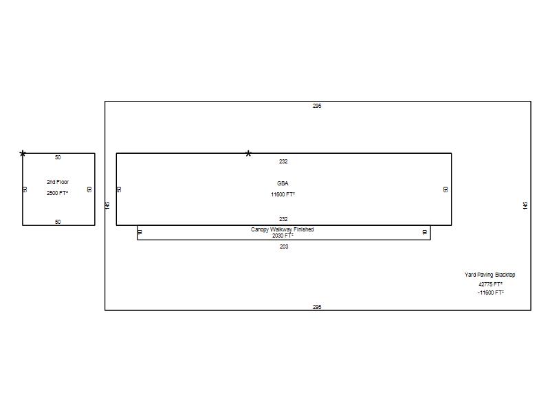
Garage, Porch, Basement, Storage, Utility etc.  (GLA=Gross Living Area    GBA=Gross Bldg Area)
Account # Feature Description Sqft/Area Number of Stories

R147852803

 GBA

 GBA

11,600 

1

R147852803

 GBA2

 2nd Floor

2,500 

1

Additional Details
Account #: Bldg # Description Qty # Of Units Description

R147852803

1

Canopy Walkway Finished

1

2,030 

Square Feet

R147852803

1

Yard Paving Blacktop

1

-11,600 

Square Feet

R147852803

1

Yard Paving Blacktop

1

42,775 

Square Feet