Larry Stein Oklahoma County Assessor (405) 713-1200 - Public Access System
Home Contact Us Guest Book Map Search New Search
Building Detail Results - Screen Produced   4/25/2026 9:57:00 PM 
 Account #:  R121071090 Bldg #1
Sketch

 Building #: 1
 Built As:  Double Wide
 # of Stories:  1 Stories
 Square Feet:  2,496
 Year Built:  2009
 Remodel Year:   
 Building Name:   
 Alt Land Use Desc:  Platted
 Quality Desc:  Good
 Bldg Frame Description:  
 Foundation Desc:  Post and Pier
 Bldg Exterior:  Hardboard Sheet
 Roof Type:  Gable
 Roof Cover:   Composition Shingle
 Avg Floor Height:  8
 Percent Sprinkled:  0
 Bldg Interior:  Drywall
 Total Rooms:  5
 # of Units w/Bedrooms: # of units (1) with 3 Bedrooms
 # of Baths:  (2)-Full, (0)-3/4, (0)-half
 HVAC Type:  Central Air to Air
 # of Fire Places:  0
 Percent Heated:  100
 Physical Condition:  Average
 # of Res Units:  1
 # of Comm Units:  0
 Commercial Desc:   
 Occ Type:  0110
 Commercial Class:  MH
 MFG Home Length:  78
 MFG Home Width:  32

Photos

2022 

2018 

2014 

2010 

2009 

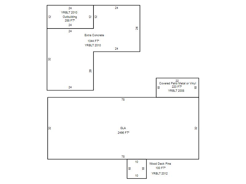
Garage, Porch, Basement, Storage, Utility etc.  (GLA=Gross Living Area    GBA=Gross Bldg Area)
Account # Feature Description Sqft/Area Number of Stories

R121071090

 GLA

 GLA

2,496 

1

Additional Details
Account #: Bldg # Description Qty # Of Units Description

R121071090

1

Allowance

1

Units

R121071090

1

Covered Patio Metal or Vinyl

1

220 

Square Feet

R121071090

1

Extra Concrete

1

1,344 

Square Feet

R121071090

1

Laundry Facility

1

Square Feet

R121071090

1

Outbuilding

1

288 

Square Feet

R121071090

1

Vinyl MH Skirt

1

220 

Square Feet

R121071090

1

Wood Deck Pine

1

100 

Square Feet