Larry Stein Oklahoma County Assessor (405) 713-1200 - Public Access System
Home Contact Us Guest Book Map Search New Search
Building Detail Results - Screen Produced   4/6/2026 10:18:25 AM 
 Account #:  R153752225 Bldg #1
Sketch

 Building #: 1
 Built As:  Ranch 1 Story
 # of Stories:  1 Stories
 Square Feet:  1,044
 Year Built:  1953
 Remodel Year:   
 Building Name:   
 Alt Land Use Desc:  Platted
 Quality Desc:  Fair
 Bldg Frame Description:  
 Foundation Desc:  Conventional
 Bldg Exterior:  Frame Masonry Veneer
 Roof Type:  Hip
 Roof Cover:   Composition Shingle
 Avg Floor Height:  8
 Percent Sprinkled:  0
 Bldg Interior:  Drywall
 Total Rooms:  5
 # of Units w/Bedrooms: # of units (1) with 3 Bedrooms
 # of Baths:  (1)-Full, (0)-3/4, (0)-half
 HVAC Type:  Floor Wall Furnace
 # of Fire Places:  0
 Percent Heated:  100
 Physical Condition:  Average
 # of Res Units:  1
 # of Comm Units:  0
 Commercial Desc:   
 Occ Type:  0100
 Commercial Class:  R
 MFG Home Length:  0
 MFG Home Width:  0

Photos

2023 

2019 

2015 

2011 

2007 

2004 

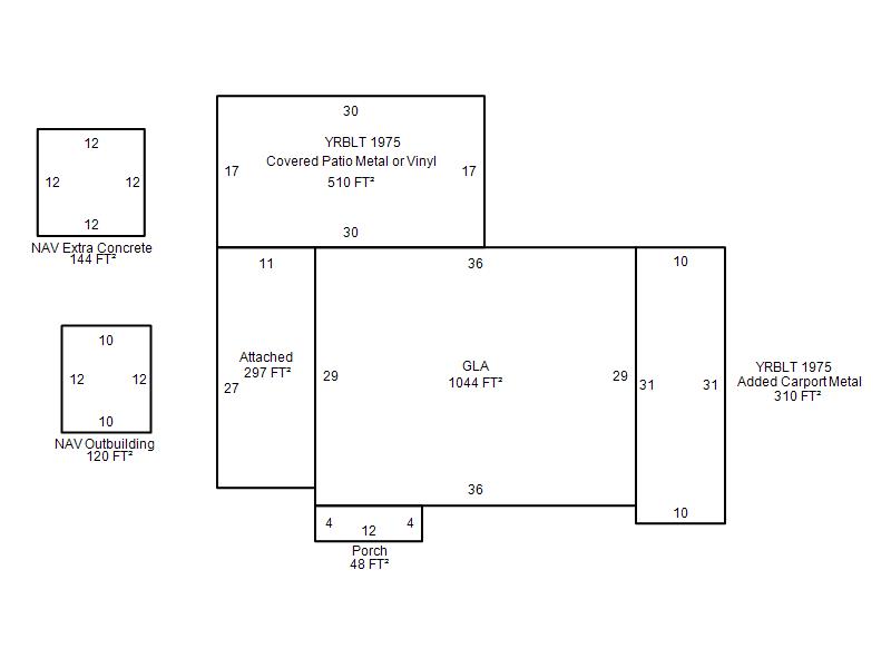
Garage, Porch, Basement, Storage, Utility etc.  (GLA=Gross Living Area    GBA=Gross Bldg Area)
Account # Feature Description Sqft/Area Number of Stories

R153752225

 GLA

 GLA

1,044 

1

R153752225

 GarAttach

 Attached

297 

1

R153752225

 PorWood R

 Porch

48 

1

Additional Details
Account #: Bldg # Description Qty # Of Units Description

R153752225

1

Added Carport Metal

1

310 

Square Feet

R153752225

1

Allowance

1

Units

R153752225

1

Covered Patio Metal or Vinyl

1

510 

Square Feet

R153752225

1

Driveway Slab

1

420 

Square Feet

R153752225

1

Exempt Storm Shelter

1

Square Feet

R153752225

1

Laundry Facility

1

Square Feet

R153752225

1

NAV Extra Concrete

1

144 

Square Feet

R153752225

1

NAV Outbuilding

1

120 

Square Feet