Larry Stein Oklahoma County Assessor (405) 713-1200 - Public Access System
Home Contact Us Guest Book Map Search New Search
Building Detail Results - Screen Produced   4/25/2026 9:58:04 PM 
 Account #:  R194361610 Bldg #1
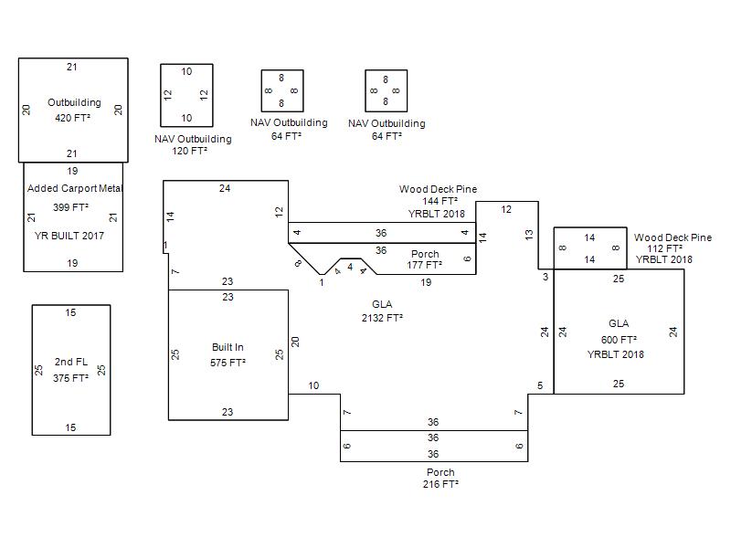
Sketch

 Building #: 1
 Built As:  1½ Story Fin
 # of Stories:  1.5 Stories
 Square Feet:  3,107
 Year Built:  1998
 Remodel Year:  2018
 Building Name:   
 Alt Land Use Desc:  Platted
 Quality Desc:  Average
 Bldg Frame Description:  
 Foundation Desc:  Slab
 Bldg Exterior:  Frame Vinyl
 Roof Type:  Gable
 Roof Cover:   Composition Shingle
 Avg Floor Height:  8
 Percent Sprinkled:  0
 Bldg Interior:  Drywall
 Total Rooms:  7
 # of Units w/Bedrooms: # of units (1) with 4 Bedrooms
 # of Baths:  (2)-Full, (1)-3/4, (0)-half
 HVAC Type:  Central Air to Air
 # of Fire Places:  1
 Percent Heated:  100
 Physical Condition:  Average
 # of Res Units:  1
 # of Comm Units:  0
 Commercial Desc:   
 Occ Type:  0100
 Commercial Class:  R
 MFG Home Length:  0
 MFG Home Width:  0

Photos

2022 

2018 

2014 

2010 

2005 

Garage, Porch, Basement, Storage, Utility etc.  (GLA=Gross Living Area    GBA=Gross Bldg Area)
Account # Feature Description Sqft/Area Number of Stories

R194361610

 GLA

 GLA

2,132 

1

R194361610

 GLA

 GLA

600 

1

R194361610

 GarBuiltIn

 Built In

575 

1

R194361610

 GLA2

 2nd FL

375 

1

R194361610

 PorWood R

 Porch

216 

1

R194361610

 PorWood R

 Porch

177 

1

Additional Details
Account #: Bldg # Description Qty # Of Units Description

R194361610

1

Added Carport Metal

1

399 

Square Feet

R194361610

1

Allowance

1

Units

R194361610

1

Laundry Facility

1

Square Feet

R194361610

1

NAV Outbuilding

1

120 

Square Feet

R194361610

1

NAV Outbuilding

1

64 

Square Feet

R194361610

1

Outbuilding

1

420 

Square Feet

R194361610

1

Wood Deck Pine

1

112 

Square Feet

R194361610

1

Wood Deck Pine

1

144 

Square Feet