Larry Stein Oklahoma County Assessor (405) 713-1200 - Public Access System
Home Contact Us Guest Book Map Search New Search
Building Detail Results - Screen Produced   3/28/2026 12:47:10 PM 
 Account #:  R201561110 Bldg #1
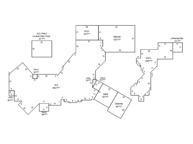
Sketch

 Building #: 1
 Built As:  1½ Story Fin
 # of Stories:  1.5 Stories
 Square Feet:  6,269
 Year Built:  2012
 Remodel Year:   
 Building Name:   
 Alt Land Use Desc:  Platted
 Quality Desc:  Excellent
 Bldg Frame Description:  
 Foundation Desc:  Slab
 Bldg Exterior:  Frame Stone Veneer
 Roof Type:  Hip
 Roof Cover:   Slate
 Avg Floor Height:  8
 Percent Sprinkled:  0
 Bldg Interior:  Drywall
 Total Rooms:  10
 # of Units w/Bedrooms: # of units (1) with 4 Bedrooms
 # of Baths:  (4)-Full, (0)-3/4, (1)-half
 HVAC Type:  Central Air to Air
 # of Fire Places:  5
 Percent Heated:  100
 Physical Condition:  Average
 # of Res Units:  1
 # of Comm Units:  0
 Commercial Desc:   
 Occ Type:  0100
 Commercial Class:  R
 MFG Home Length:  0
 MFG Home Width:  0

Photos

2021 

2017 

2013 

2012 

Garage, Porch, Basement, Storage, Utility etc.  (GLA=Gross Living Area    GBA=Gross Bldg Area)
Account # Feature Description Sqft/Area Number of Stories

R201561110

 GLA

 GLA

4,944 

1

R201561110

 GLA2

 2nd FL

1,325 

1

R201561110

 GarAttach

 Attached

1,232 

1

R201561110

 GarDetach

 Detached

450 

1

R201561110

 PorWood R

 Porch

442 

1

R201561110

 CarGable

 Gable

420 

1

R201561110

 UA

 Unfinished Attic

121 

1

R201561110

 PorWood R

 Porch

99 

1

R201561110

 PorWood R

 Porch

80 

1

R201561110

 StoUtilWd

 Utility

36 

1

R201561110

 PorWood R

 Porch

25 

1

R201561110

 StoUtilWd

 Utility

24 

1

Additional Details
Account #: Bldg # Description Qty # Of Units Description

R201561110

1

Allowance

1

Units

R201561110

1

Covered Patio Wood

1

437 

Square Feet

R201561110

1

Driveway Slab

1

1,634 

Square Feet

R201561110

1

Hot Tub

1

Units

R201561110

1

Laundry Facility

1

Square Feet

R201561110

1

Swimming Pool

1

924 

Square Feet