Larry Stein Oklahoma County Assessor (405) 713-1200 - Public Access System
Home Contact Us Guest Book Map Search New Search
Building Detail Results - Screen Produced   5/16/2026 11:35:20 PM 
 Account #:  R201911350 Bldg #1
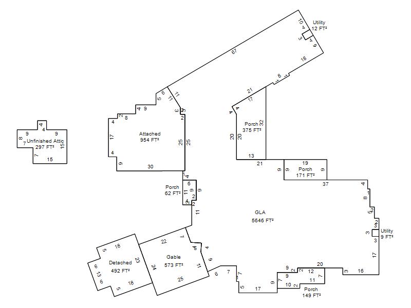
Sketch

 Building #: 1
 Built As:  1½ Story Unfin
 # of Stories:  1.5 Stories
 Square Feet:  5,646
 Year Built:  2016
 Remodel Year:   
 Building Name:   
 Alt Land Use Desc:  Platted
 Quality Desc:  Very Good
 Bldg Frame Description:  
 Foundation Desc:  Slab
 Bldg Exterior:  Frame Brick Veneer
 Roof Type:  Hip/Gable
 Roof Cover:   Composition Shingle
 Avg Floor Height:  8
 Percent Sprinkled:  0
 Bldg Interior:  Drywall
 Total Rooms:  10
 # of Units w/Bedrooms: # of units (1) with 3 Bedrooms
 # of Baths:  (3)-Full, (1)-3/4, (0)-half
 HVAC Type:  Central Air to Air
 # of Fire Places:  1
 Percent Heated:  100
 Physical Condition:  Average
 # of Res Units:  1
 # of Comm Units:  0
 Commercial Desc:   
 Occ Type:  0100
 Commercial Class:  R
 MFG Home Length:  0
 MFG Home Width:  0

Photos

2021 

2018 

Garage, Porch, Basement, Storage, Utility etc.  (GLA=Gross Living Area    GBA=Gross Bldg Area)
Account # Feature Description Sqft/Area Number of Stories

R201911350

 GLA

 GLA

5,646 

1

R201911350

 GarAttach

 Attached

954 

1

R201911350

 CarGable

 Gable

573 

1

R201911350

 GarDetach

 Detached

492 

1

R201911350

 PorWood R

 Porch

375 

1

R201911350

 UA

 Unfinished Attic

297 

1

R201911350

 PorWood R

 Porch

171 

1

R201911350

 PorWood R

 Porch

149 

1

R201911350

 PorWood R

 Porch

62 

1

R201911350

 StoUtilWd

 Utility

12 

1

R201911350

 StoUtilWd

 Utility

1

Additional Details
Account #: Bldg # Description Qty # Of Units Description

R201911350

1

Allowance

1

Units

R201911350

1

Hot Tub

1

Units

R201911350

1

Laundry Facility

1

Square Feet

R201911350

1

Swimming Pool

1

610 

Square Feet