Larry Stein Oklahoma County Assessor (405) 713-1200 - Public Access System
Home Contact Us Guest Book Map Search New Search
Building Detail Results - Screen Produced   4/1/2026 7:10:33 AM 
 Account #:  R124150380 Bldg #1
Sketch

 Building #: 1
 Built As:  Condo <= 3 Stories
 # of Stories:  1 Stories
 Square Feet:  1,089
 Year Built:  1984
 Remodel Year:   
 Building Name:   
 Alt Land Use Desc:  Platted
 Quality Desc:  Average
 Bldg Frame Description:  
 Foundation Desc:  Slab
 Bldg Exterior:  Frame Masonry Veneer
 Roof Type:  Gable
 Roof Cover:   Composition Shingle
 Avg Floor Height:  8
 Percent Sprinkled:  0
 Bldg Interior:  Drywall
 Total Rooms:  6
 # of Units w/Bedrooms: # of units (1) with 2 Bedrooms
 # of Baths:  (2)-Full, (0)-3/4, (0)-half
 HVAC Type:  Central Air to Air
 # of Fire Places:  1
 Percent Heated:  100
 Physical Condition:  Average
 # of Res Units:  1
 # of Comm Units:  0
 Commercial Desc:   
 Occ Type:  0112
 Commercial Class:  COND
 MFG Home Length:  0
 MFG Home Width:  0

Photos

2022 

2018 

2014 

2010 

2006 

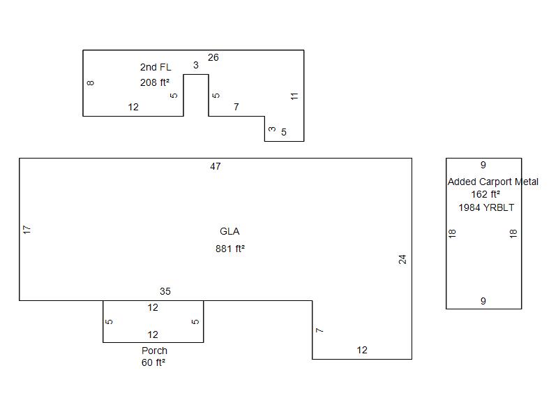
Garage, Porch, Basement, Storage, Utility etc.  (GLA=Gross Living Area    GBA=Gross Bldg Area)
Account # Feature Description Sqft/Area Number of Stories

R124150380

 GLA

 GLA

881 

1

R124150380

 GLA2

 2nd FL

208 

1

R124150380

 PorWood R

 Porch

60 

1

Additional Details
Account #: Bldg # Description Qty # Of Units Description

R124150380

1

Added Carport Metal

1

162 

Square Feet

R124150380

1

Allowance

1

Units

R124150380

1

Apartment Clubhouse

1

26 

Square Feet

R124150380

1

Laundry Facility

1

Square Feet

R124150380

1

Swimming Pool

1

Square Feet