Larry Stein Oklahoma County Assessor (405) 713-1200 - Public Access System
Home Contact Us Guest Book Map Search New Search
Building Detail Results - Screen Produced   4/2/2026 3:14:15 PM 
 Account #:  R178955275 Bldg #1
Sketch

 Building #: 1
 Built As:  1½ Story Fin
 # of Stories:  1.5 Stories
 Square Feet:  2,974
 Year Built:  1959
 Remodel Year:  2021
 Building Name:   
 Alt Land Use Desc:  Platted
 Quality Desc:  Average
 Bldg Frame Description:  
 Foundation Desc:  Slab
 Bldg Exterior:  Frame Masonry Veneer
 Roof Type:  Gable
 Roof Cover:   Composition Shingle
 Avg Floor Height:  8
 Percent Sprinkled:  0
 Bldg Interior:  Drywall
 Total Rooms:  8
 # of Units w/Bedrooms: # of units (1) with 5 Bedrooms
 # of Baths:  (3)-Full, (0)-3/4, (1)-half
 HVAC Type:  Central Air to Air
 # of Fire Places:  1
 Percent Heated:  100
 Physical Condition:  Average
 # of Res Units:  1
 # of Comm Units:  0
 Commercial Desc:   
 Occ Type:  0100
 Commercial Class:  R
 MFG Home Length:  0
 MFG Home Width:  0

Photos

2022 

2018 

2014 

2010 

2006 

2003 

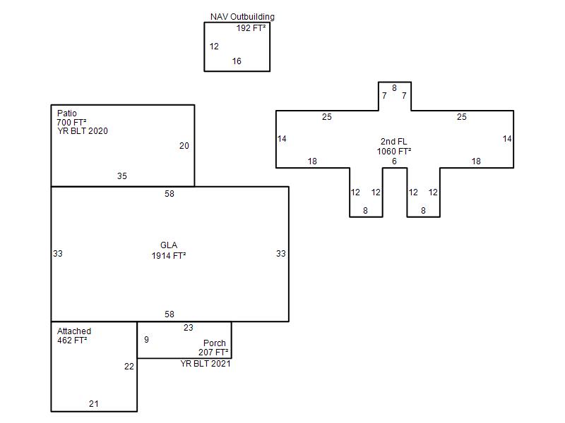
Garage, Porch, Basement, Storage, Utility etc.  (GLA=Gross Living Area    GBA=Gross Bldg Area)
Account # Feature Description Sqft/Area Number of Stories

R178955275

 GLA

 GLA

1,914 

1

R178955275

 GLA2

 2nd FL

1,060 

1

R178955275

 PorOpenSl

 Patio

700 

1

R178955275

 GarAttach

 Attached

462 

1

R178955275

 PorWood R

 Porch

207 

1

Additional Details
Account #: Bldg # Description Qty # Of Units Description

R178955275

1

Allowance

1

Units

R178955275

1

Laundry Facility

1

Square Feet

R178955275

1

NAV Outbuilding

1

192 

Square Feet