Larry Stein Oklahoma County Assessor (405) 713-1200 - Public Access System
Home Contact Us Guest Book Map Search New Search
Building Detail Results - Screen Produced   2/28/2026 6:10:24 AM 
 Account #:  R148852200 Bldg #1
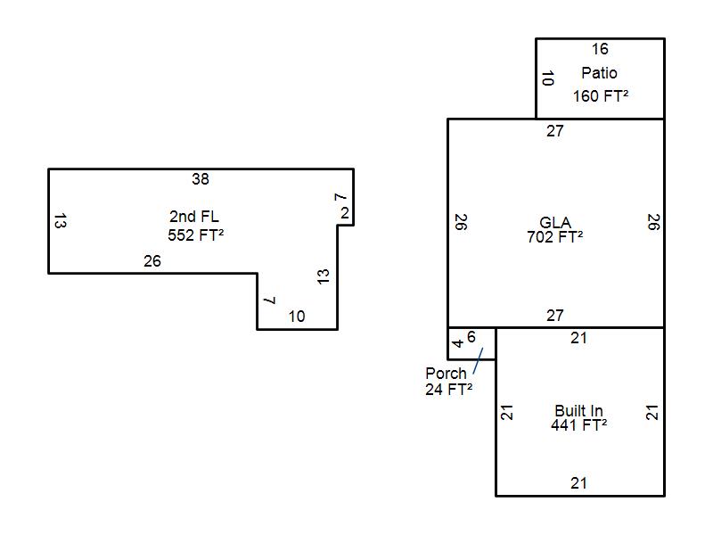
Sketch

 Building #: 1
 Built As:  Townhouse Multiple Story
 # of Stories:  2 Stories
 Square Feet:  1,254
 Year Built:  1974
 Remodel Year:   
 Building Name:   
 Alt Land Use Desc:  Platted
 Quality Desc:  Average
 Bldg Frame Description:  
 Foundation Desc:  Slab
 Bldg Exterior:  Frame Siding
 Roof Type:  Gable
 Roof Cover:   Composition Shingle
 Avg Floor Height:  8
 Percent Sprinkled:  0
 Bldg Interior:  Drywall
 Total Rooms:  5
 # of Units w/Bedrooms: # of units (1) with 2 Bedrooms
 # of Baths:  (1)-Full, (0)-3/4, (1)-half
 HVAC Type:  Central Air to Air
 # of Fire Places:  1
 Percent Heated:  100
 Physical Condition:  Average
 # of Res Units:  1
 # of Comm Units:  0
 Commercial Desc:   
 Occ Type:  0108
 Commercial Class:  TH
 MFG Home Length:  0
 MFG Home Width:  0

Photos

2022 

2018 

2014 

2010 

2006 

2003 

Garage, Porch, Basement, Storage, Utility etc.  (GLA=Gross Living Area    GBA=Gross Bldg Area)
Account # Feature Description Sqft/Area Number of Stories

R148852200

 GLA

 GLA

702 

1

R148852200

 GLA2

 2nd FL

552 

1

R148852200

 GarBuiltIn

 Built In

441 

1

R148852200

 PorOpenSl

 Patio

160 

1

R148852200

 PorWood R

 Porch

24 

1

Additional Details
Account #: Bldg # Description Qty # Of Units Description

R148852200

1

Allowance

1

Units

R148852200

1

Laundry Facility

1

Square Feet