Larry Stein Oklahoma County Assessor (405) 713-1200 - Public Access System
Home Contact Us Guest Book Map Search New Search
Building Detail Results - Screen Produced   4/25/2026 9:47:09 PM 
 Account #:  R140551035 Bldg #1
Sketch

 Building #: 1
 Built As:  1½ Story Fin
 # of Stories:  1.5 Stories
 Square Feet:  2,512
 Year Built:  2022
 Remodel Year:  2025
 Building Name:   
 Alt Land Use Desc:  Platted
 Quality Desc:  Average
 Bldg Frame Description:  
 Foundation Desc:  Slab
 Bldg Exterior:  Frame Masonry Veneer
 Roof Type:  Hip/Gable
 Roof Cover:   Composition Shingle
 Avg Floor Height:  8
 Percent Sprinkled:   
 Bldg Interior:  Drywall
 Total Rooms:  7
 # of Units w/Bedrooms: # of units (1) with 3 Bedrooms
 # of Baths:  (2)-Full, (0)-3/4, (2)-half
 HVAC Type:  Central Air to Air
 # of Fire Places:  2
 Percent Heated:  100
 Physical Condition:  Average
 # of Res Units:  1
 # of Comm Units:   
 Commercial Desc:   
 Occ Type:  0100
 Commercial Class:  R
 MFG Home Length:   
 MFG Home Width:   

Photos

2023 

2022 

2022 

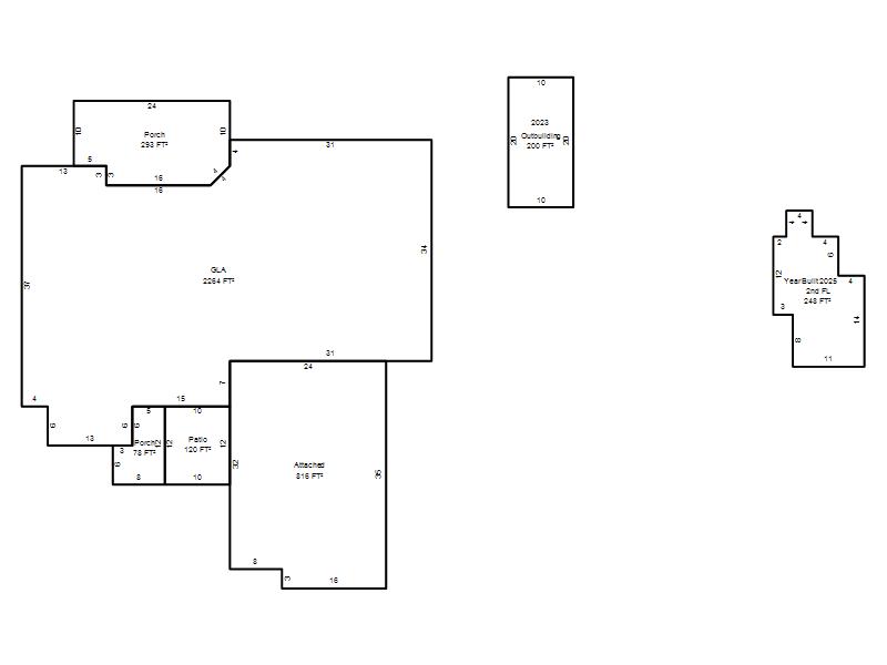
Garage, Porch, Basement, Storage, Utility etc.  (GLA=Gross Living Area    GBA=Gross Bldg Area)
Account # Feature Description Sqft/Area Number of Stories

R140551035

 GLA

 GLA

2,264 

1

R140551035

 GarAttach

 Attached

816 

1

R140551035

 PorWood R

 Porch

293 

1

R140551035

 GLA2

 2nd FL

248 

1

R140551035

 PorOpenSl

 Patio

120 

1

R140551035

 PorWood R

 Porch

78 

1

Additional Details
Account #: Bldg # Description Qty # Of Units Description

R140551035

1

Allowance

1

Units

R140551035

1

Exempt Storm Shelter

1

Square Feet

R140551035

1

Hot Tub

1

Units

R140551035

1

Laundry Facility

1

Square Feet

R140551035

1

Outbuilding

1

200 

Square Feet

R140551035

1

Swimming Pool

1

490 

Square Feet