Larry Stein Oklahoma County Assessor (405) 713-1200 - Public Access System
Home Contact Us Guest Book Map Search New Search
Building Detail Results - Screen Produced   4/10/2026 3:56:02 AM 
 Account #:  R181791490 Bldg #1
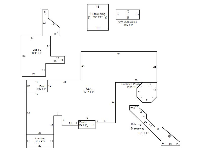
Sketch

 Building #: 1
 Built As:  1½ Story Fin
 # of Stories:  1.5 Stories
 Square Feet:  5,378
 Year Built:  1977
 Remodel Year:  1982
 Building Name:   
 Alt Land Use Desc:  Platted
 Quality Desc:  Good
 Bldg Frame Description:  
 Foundation Desc:  Slab
 Bldg Exterior:  Frame Masonry Veneer
 Roof Type:  Gable
 Roof Cover:   Composition Shingle
 Avg Floor Height:  8
 Percent Sprinkled:  0
 Bldg Interior:  Drywall
 Total Rooms:  11
 # of Units w/Bedrooms: # of units (1) with 5 Bedrooms
 # of Baths:  (4)-Full, (0)-3/4, (1)-half
 HVAC Type:  Central Air to Air
 # of Fire Places:  3
 Percent Heated:  100
 Physical Condition:  Average
 # of Res Units:  1
 # of Comm Units:  0
 Commercial Desc:   
 Occ Type:  0100
 Commercial Class:  R
 MFG Home Length:  0
 MFG Home Width:  0

Photos

2024 

2020 

2016 

2016 

2012 

2008 

2004 

2003 

Garage, Porch, Basement, Storage, Utility etc.  (GLA=Gross Living Area    GBA=Gross Bldg Area)
Account # Feature Description Sqft/Area Number of Stories

R181791490

 GLA

 GLA

4,314 

1

R181791490

 GLA2

 2nd FL

1,064 

1

R181791490

 BalWd F

 Balcony

378 

1

R181791490

 PorBreeze

 Breezeway

378 

1

R181791490

 GarAttach

 Attached

253 

1

R181791490

 PorEncSld

 Enclosed Porch

252 

1

R181791490

 PorWood R

 Porch

180 

1

R181791490

 PorWood R

 Porch

98 

1

Additional Details
Account #: Bldg # Description Qty # Of Units Description

R181791490

1

Allowance

1

Units

R181791490

1

Driveway Slab

1

960 

Square Feet

R181791490

1

Laundry Facility

1

Square Feet

R181791490

1

NAV Outbuilding

1

160 

Square Feet

R181791490

1

Outbuilding

1

396 

Square Feet

R181791490

1

Swimming Pool

1

360 

Square Feet