Larry Stein Oklahoma County Assessor (405) 713-1200 - Public Access System
Home Contact Us Guest Book Map Search New Search
Building Detail Results - Screen Produced   4/8/2026 10:22:14 AM 
 Account #:  R181791270 Bldg #1
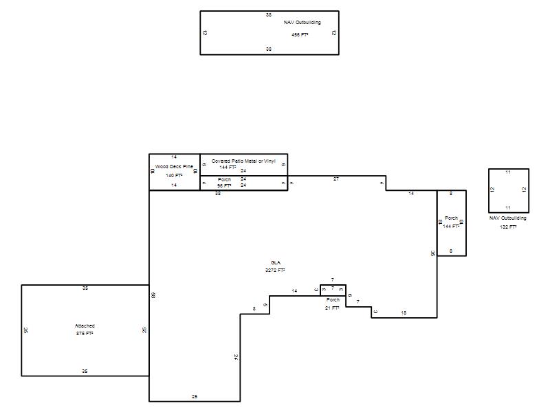
Sketch

 Building #: 1
 Built As:  Ranch 1 Story
 # of Stories:  1 Stories
 Square Feet:  3,272
 Year Built:  1978
 Remodel Year:  2021
 Building Name:   
 Alt Land Use Desc:  Platted
 Quality Desc:  Good
 Bldg Frame Description:  
 Foundation Desc:  Slab
 Bldg Exterior:  Frame Masonry Veneer
 Roof Type:  Gable
 Roof Cover:   Composition Shingle
 Avg Floor Height:  8
 Percent Sprinkled:  0
 Bldg Interior:  Drywall
 Total Rooms:  8
 # of Units w/Bedrooms: # of units (1) with 4 Bedrooms
 # of Baths:  (2)-Full, (0)-3/4, (0)-half
 HVAC Type:  Central Air to Air
 # of Fire Places:  3
 Percent Heated:  100
 Physical Condition:  Average
 # of Res Units:  1
 # of Comm Units:  0
 Commercial Desc:   
 Occ Type:  0100
 Commercial Class:  R
 MFG Home Length:  0
 MFG Home Width:  0

Photos

2024 

2023 

2022 

2020 

2016 

2012 

2008 

2004 

2003 

Garage, Porch, Basement, Storage, Utility etc.  (GLA=Gross Living Area    GBA=Gross Bldg Area)
Account # Feature Description Sqft/Area Number of Stories

R181791270

 GLA

 GLA

3,272 

1

R181791270

 GarAttach

 Attached

875 

1

R181791270

 PorWood R

 Porch

144 

1

R181791270

 PorWood R

 Porch

96 

1

R181791270

 PorWood R

 Porch

21 

1

Additional Details
Account #: Bldg # Description Qty # Of Units Description

R181791270

1

Allowance

1

Units

R181791270

1

Covered Patio Metal or Vinyl

1

144 

Square Feet

R181791270

1

Driveway Slab

1

200 

Square Feet

R181791270

1

Exempt Storm Shelter

1

Square Feet

R181791270

1

Laundry Facility

1

Square Feet

R181791270

1

NAV Outbuilding

1

132 

Square Feet

R181791270

1

NAV Outbuilding

1

456 

Square Feet

R181791270

1

Swimming Pool

1

1,002 

Square Feet

R181791270

1

Wood Deck Pine

1

140 

Square Feet