Larry Stein Oklahoma County Assessor (405) 713-1200 - Public Access System
Home Contact Us Guest Book Map Search New Search
Building Detail Results - Screen Produced   3/21/2026 1:12:53 AM 
 Account #:  R183421760 Bldg #1
Sketch

 Building #: 1
 Built As:  Convenience Store
 # of Stories:  1 Stories
 Square Feet:  2,400
 Year Built:  1982
 Remodel Year:   
 Building Name:  SHELL FOOD MART
 Alt Land Use Desc:  Platted Commercial
 Quality Desc:  Average
 Bldg Frame Description:  Masonry
 Foundation Desc:  Slab
 Bldg Exterior:  Masonry Face Brick
 Roof Type:  Flat
 Roof Cover:   Built Up Rock
 Avg Floor Height:  12
 Percent Sprinkled:  0
 Bldg Interior:  
 Total Rooms:   
 # of Units w/Bedrooms: # of units ( ) with   Bedrooms
 # of Baths:  (0)-Full, (0)-3/4, (0)-half
 HVAC Type:  Package Unit
 # of Fire Places:  0
 Percent Heated:  100
 Physical Condition:  Average
 # of Res Units:  0
 # of Comm Units:  1
 Commercial Desc:   
 Occ Type:  0419
 Commercial Class:  C
 MFG Home Length:  0
 MFG Home Width:  0

Photos

2019 

2014 

2009 

2006 

2005 

2004 

2003 

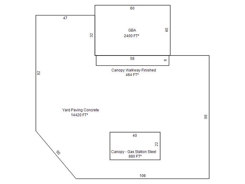
Garage, Porch, Basement, Storage, Utility etc.  (GLA=Gross Living Area    GBA=Gross Bldg Area)
Account # Feature Description Sqft/Area Number of Stories

R183421760

 GBA

 GBA

2,400 

1

Additional Details
Account #: Bldg # Description Qty # Of Units Description

R183421760

1

Canopy - Gas Station Steel

1

880 

Square Feet

R183421760

1

Canopy Walkway Finished

1

464 

Square Feet

R183421760

1

Dumpster Enclosure

1

Units

R183421760

1

Gas Pump 2 Side

1

Units

R183421760

1

Yard Paving Concrete

1

14,420 

Square Feet