Larry Stein Oklahoma County Assessor (405) 713-1200 - Public Access System
Home Contact Us Guest Book Map Search New Search
Building Detail Results - Screen Produced   4/28/2026 5:00:16 AM 
 Account #:  R257173045 Bldg #1
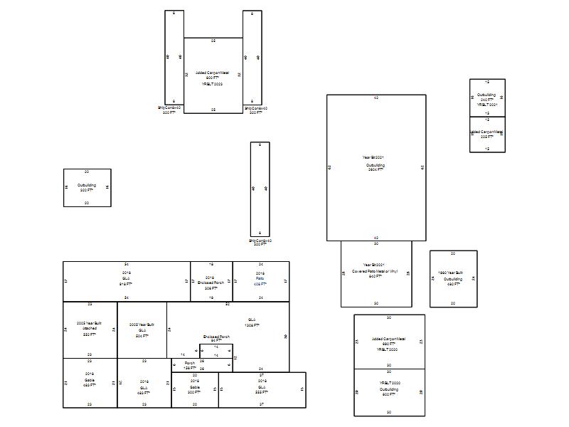
Sketch

 Building #: 1
 Built As:  Ranch 1 Story
 # of Stories:  1 Stories
 Square Feet:  3,768
 Year Built:  1989
 Remodel Year:  2018
 Building Name:   
 Alt Land Use Desc:  Unplatted 5 Acres or more
 Quality Desc:  Average
 Bldg Frame Description:  
 Foundation Desc:  Conventional
 Bldg Exterior:  Frame Masonry Veneer
 Roof Type:  Hip
 Roof Cover:   Composition Shingle
 Avg Floor Height:  8
 Percent Sprinkled:  0
 Bldg Interior:  Drywall
 Total Rooms:  10
 # of Units w/Bedrooms: # of units (1) with 5 Bedrooms
 # of Baths:  (4)-Full, (0)-3/4, (0)-half
 HVAC Type:  Central Air to Air
 # of Fire Places:  1
 Percent Heated:  100
 Physical Condition:  Average
 # of Res Units:  1
 # of Comm Units:  0
 Commercial Desc:   
 Occ Type:  0100
 Commercial Class:  R
 MFG Home Length:  0
 MFG Home Width:  0

Photos

2022 

2019 

2019 

2018 

2017 

Garage, Porch, Basement, Storage, Utility etc.  (GLA=Gross Living Area    GBA=Gross Bldg Area)
Account # Feature Description Sqft/Area Number of Stories

R257173045

 GLA

 GLA

1,308 

1

R257173045

 GLA

 GLA

918 

1

R257173045

 GLA

 GLA

555 

1

R257173045

 GarAttach

 Attached

552 

1

R257173045

 GLA

 GLA

504 

1

R257173045

 CarGable

 Gable

483 

1

R257173045

 GLA

 GLA

483 

1

R257173045

 PorOpenSl

 Patio

408 

1

R257173045

 PorEncSld

 Enclosed Porch

306 

1

R257173045

 CarGable

 Gable

300 

1

R257173045

 PorWood R

 Porch

156 

1

R257173045

 PorEncSld

 Enclosed Porch

84 

1

Additional Details
Account #: Bldg # Description Qty # Of Units Description

R257173045

1

Added Carport Metal

1

225 

Square Feet

R257173045

1

Added Carport Metal

1

690 

Square Feet

R257173045

1

Added Carport Metal

1

800 

Square Feet

R257173045

1

Allowance

1

Units

R257173045

1

Covered Patio Metal or Vinyl

1

840 

Square Feet

R257173045

1

Driveway Slab

1

1,600 

Square Feet

R257173045

1

Laundry Facility

1

Square Feet

R257173045

1

Outbuilding

1

2,604 

Square Feet

R257173045

1

Outbuilding

1

240 

Square Feet

R257173045

1

Outbuilding

1

320 

Square Feet

R257173045

1

Outbuilding

1

480 

Square Feet

R257173045

1

Outbuilding

1

600 

Square Feet

R257173045

1

ShipCon8x40

1

320 

Square Feet