Larry Stein Oklahoma County Assessor (405) 713-1200 - Public Access System
Home Contact Us Guest Book Map Search New Search
Building Detail Results - Screen Produced   4/2/2026 4:13:11 PM 
 Account #:  R203601450 Bldg #1
Sketch

 Building #: 1
 Built As:  1½ Story Fin
 # of Stories:  1.5 Stories
 Square Feet:  3,928
 Year Built:  2005
 Remodel Year:   
 Building Name:   
 Alt Land Use Desc:  Platted
 Quality Desc:  Very Good
 Bldg Frame Description:  
 Foundation Desc:  Slab
 Bldg Exterior:  Frame Brick Veneer
 Roof Type:  Hip
 Roof Cover:   Clay Tile
 Avg Floor Height:  8
 Percent Sprinkled:  0
 Bldg Interior:  Drywall
 Total Rooms:  11
 # of Units w/Bedrooms: # of units (1) with 3 Bedrooms
 # of Baths:  (4)-Full, (0)-3/4, (0)-half
 HVAC Type:  Central Air to Air
 # of Fire Places:  1
 Percent Heated:  100
 Physical Condition:  Average
 # of Res Units:  1
 # of Comm Units:  0
 Commercial Desc:   
 Occ Type:  0100
 Commercial Class:  R
 MFG Home Length:  0
 MFG Home Width:  0

Photos

2022 

2019 

2015 

2011 

2004 

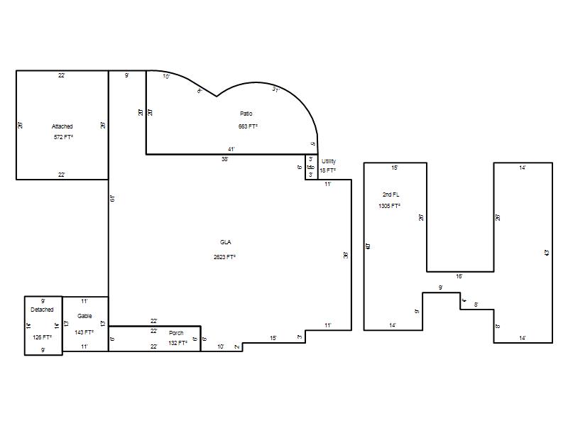
Garage, Porch, Basement, Storage, Utility etc.  (GLA=Gross Living Area    GBA=Gross Bldg Area)
Account # Feature Description Sqft/Area Number of Stories

R203601450

 GLA

 GLA

2,623 

1

R203601450

 GLA2

 2nd FL

1,305 

1

R203601450

 PorOpenSl

 Patio

663 

1

R203601450

 GarAttach

 Attached

572 

1

R203601450

 CarGable

 Gable

143 

1

R203601450

 PorWood R

 Porch

132 

1

R203601450

 GarDetach

 Detached

126 

1

R203601450

 StoUtilWd

 Utility

18 

1

Additional Details
Account #: Bldg # Description Qty # Of Units Description

R203601450

1

Allowance

1

Units

R203601450

1

Driveway Slab

1

720 

Square Feet

R203601450

1

Exempt Storm Shelter

1

72 

Square Feet

R203601450

1

Laundry Facility

1

Square Feet