Larry Stein Oklahoma County Assessor (405) 713-1200 - Public Access System
Home Contact Us Guest Book Map Search New Search
Building Detail Results - Screen Produced   4/25/2026 10:19:52 AM 
 Account #:  R212341070 Bldg #1
Sketch

 Building #: 1
 Built As:  Townhouse Multiple Story
 # of Stories:  3 Stories
 Square Feet:  2,019
 Year Built:  2021
 Remodel Year:   
 Building Name:   
 Alt Land Use Desc:  Platted
 Quality Desc:  Good
 Bldg Frame Description:  
 Foundation Desc:  Slab
 Bldg Exterior:  Frame Stucco
 Roof Type:  Flat
 Roof Cover:   Built Up Rock
 Avg Floor Height:  8
 Percent Sprinkled:  0
 Bldg Interior:  Drywall
 Total Rooms:  6
 # of Units w/Bedrooms: # of units (1) with 2 Bedrooms
 # of Baths:  (2)-Full, (0)-3/4, (1)-half
 HVAC Type:  Central Air to Air
 # of Fire Places:  1
 Percent Heated:  100
 Physical Condition:  Average
 # of Res Units:  1
 # of Comm Units:  0
 Commercial Desc:   
 Occ Type:  0108
 Commercial Class:  TH
 MFG Home Length:   
 MFG Home Width:   

Photos

2022 

2022 

2021 

2020 

2020 

2016 

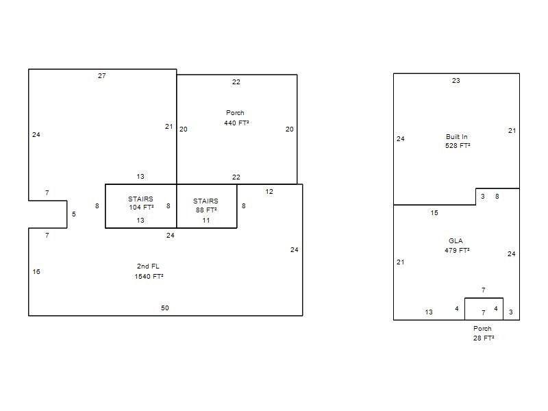
Garage, Porch, Basement, Storage, Utility etc.  (GLA=Gross Living Area    GBA=Gross Bldg Area)
Account # Feature Description Sqft/Area Number of Stories

R212341070

 GLA2

 2nd FL

1,540 

1

R212341070

 GarBuiltIn

 Built In

528 

1

R212341070

 GLA

 GLA

479 

1

R212341070

 PorWood R

 Porch

440 

1

R212341070

 PorWood R

 Porch

28 

1

Additional Details
Account #: Bldg # Description Qty # Of Units Description

R212341070

1

Allowance

1

Units

R212341070

1

Elevator 4 x 4

1

Units

R212341070

1

Laundry Facility

1

Square Feet

R212341070

1

Miscellaneous

1

104 

Square Feet

R212341070

1

Miscellaneous

1

88 

Square Feet