Larry Stein Oklahoma County Assessor (405) 713-1200 - Public Access System
Home Contact Us Guest Book Map Search New Search
Building Detail Results - Screen Produced   4/27/2026 4:28:15 PM 
 Account #:  R211551005 Bldg #1
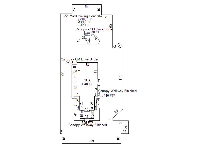
Sketch

 Building #: 1
 Built As:  Fast Food Restaurant
 # of Stories:  1 Stories
 Square Feet:  3,340
 Year Built:  2016
 Remodel Year:   
 Building Name:  CHICKEN EXPRESS
 Alt Land Use Desc:  Platted Commercial
 Quality Desc:  Average Plus
 Bldg Frame Description:  Wood Frame
 Foundation Desc:  Slab
 Bldg Exterior:  Frame Brick Veneer
 Roof Type:  Flat
 Roof Cover:   Built Up Rock
 Avg Floor Height:  14
 Percent Sprinkled:  0
 Bldg Interior:  
 Total Rooms:   
 # of Units w/Bedrooms: # of units ( ) with   Bedrooms
 # of Baths:  (0)-Full, (0)-3/4, (0)-half
 HVAC Type:  Complete HVAC
 # of Fire Places:  0
 Percent Heated:  100
 Physical Condition:  Good
 # of Res Units:  0
 # of Comm Units:  1
 Commercial Desc:   
 Occ Type:  0349
 Commercial Class:  C
 MFG Home Length:  0
 MFG Home Width:  0

Photos

2024 

2020 

2016 

2016 

2016 

2016 

2016 

2015 

2014 

Garage, Porch, Basement, Storage, Utility etc.  (GLA=Gross Living Area    GBA=Gross Bldg Area)
Account # Feature Description Sqft/Area Number of Stories

R211551005

 GBA

 GBA

3,340 

1

Additional Details
Account #: Bldg # Description Qty # Of Units Description

R211551005

1

Canopy - CM Drive Under

1

528 

Square Feet

R211551005

1

Canopy - CM Drive Under

1

80 

Square Feet

R211551005

1

Canopy Walkway Finished

1

140 

Square Feet

R211551005

1

Canopy Walkway Finished

1

355 

Square Feet

R211551005

1

Drive-up Window Narrow Bay

1

Units

R211551005

1

Dumpster Enclosure

1

Units

R211551005

1

Yard Paving Blacktop Unsketched

1

6,500 

Square Feet

R211551005

1

Yard Paving Concrete

1

27,303 

Square Feet

R211551005

1

Yard Paving Concrete

1

-4,136 

Square Feet

R211551005

1

Yard Paving Concrete

1

-612 

Square Feet