Larry Stein Oklahoma County Assessor (405) 713-1200 - Public Access System
Home Contact Us Guest Book Map Search New Search
Building Detail Results - Screen Produced   4/1/2026 8:43:29 AM 
 Account #:  R216091280 Bldg #1
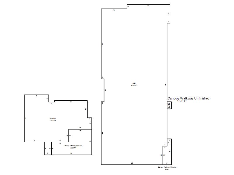
Sketch

 Building #: 1
 Built As:  Office Style Park
 # of Stories:  1.5 Stories
 Square Feet:  6,345
 Year Built:  2023
 Remodel Year:   
 Building Name:  CASTLEPOINT WEALTH ADVISORS
 Alt Land Use Desc:  Platted Commercial
 Quality Desc:  Good
 Bldg Frame Description:  Wood Frame
 Foundation Desc:  Slab
 Bldg Exterior:  Frame Brick Veneer
 Roof Type:  Flat
 Roof Cover:   Elastomeric
 Avg Floor Height:  10
 Percent Sprinkled:   
 Bldg Interior:  
 Total Rooms:   
 # of Units w/Bedrooms: # of units ( ) with   Bedrooms
 # of Baths:  ( )-Full, ( )-3/4, ( )-half
 HVAC Type:  Package Unit
 # of Fire Places:   
 Percent Heated:  100
 Physical Condition:  Very Good
 # of Res Units:   
 # of Comm Units:  1
 Commercial Desc:   
 Occ Type:  3443
 Commercial Class:  C
 MFG Home Length:   
 MFG Home Width:   

Photos

2023 

2023 

2023 

Garage, Porch, Basement, Storage, Utility etc.  (GLA=Gross Living Area    GBA=Gross Bldg Area)
Account # Feature Description Sqft/Area Number of Stories

R216091280

 GBA

 GBA

5,053 

1

R216091280

 GBA2

 2nd Floor

1,292 

1

Additional Details
Account #: Bldg # Description Qty # Of Units Description

R216091280

1

Canopy Walkway Finished

1

396 

Square Feet

R216091280

1

Canopy Walkway Finished

1

93 

Square Feet

R216091280

1

Canopy Walkway Unfinished

1

15 

Square Feet

R216091280

1

Yard Paving Blacktop Unsketched

1

7,191 

Square Feet