Larry Stein Oklahoma County Assessor (405) 713-1200 - Public Access System
Home Contact Us Guest Book Map Search New Search
Building Detail Results - Screen Produced   3/26/2026 7:00:07 AM 
 Account #:  R216541120 Bldg #1
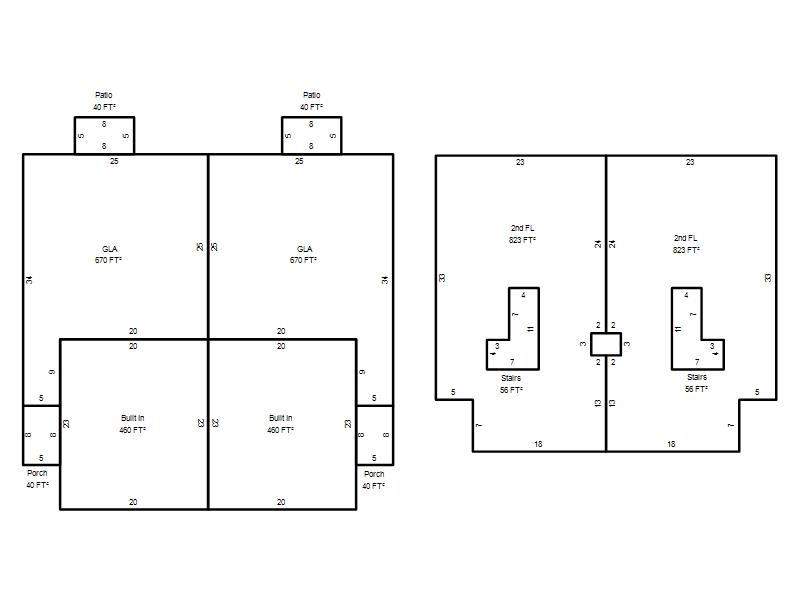
Sketch

 Building #: 1
 Built As:  Duplex Two Story
 # of Stories:  2 Stories
 Square Feet:  2,986
 Year Built:  2022
 Remodel Year:   
 Building Name:   
 Alt Land Use Desc:  Platted
 Quality Desc:  Average
 Bldg Frame Description:  
 Foundation Desc:  Slab
 Bldg Exterior:  Frame Masonry Veneer
 Roof Type:  Hip
 Roof Cover:   Composition Shingle
 Avg Floor Height:  8
 Percent Sprinkled:   
 Bldg Interior:  Drywall
 Total Rooms:  3
 # of Units w/Bedrooms: # of units (1) with 2 Bedrooms
 # of Baths:  (4)-Full, (0)-3/4, (0)-half
 HVAC Type:  Central Air to Air
 # of Fire Places:  0
 Percent Heated:  100
 Physical Condition:  Average
 # of Res Units:  2
 # of Comm Units:   
 Commercial Desc:   
 Occ Type:  0102
 Commercial Class:  DP
 MFG Home Length:   
 MFG Home Width:   
[1/2]

Photos

2023 

2023 

2022 

2022 

Garage, Porch, Basement, Storage, Utility etc.  (GLA=Gross Living Area    GBA=Gross Bldg Area)
Account # Feature Description Sqft/Area Number of Stories

R216541120

 GLA2

 2nd FL

823 

1

R216541120

 GLA

 GLA

670 

1

R216541120

 GarBuiltIn

 Built In

460 

1

R216541120

 PorWood R

 Porch

40 

1

R216541120

 PorOpenSl

 Patio

40 

1

Additional Details
Account #: Bldg # Description Qty # Of Units Description

R216541120

1

Allowance

1

Units

R216541120

1

Laundry Facility

1

Square Feet

R216541120

1

Miscellaneous

1

56 

Square Feet