Larry Stein Oklahoma County Assessor (405) 713-1200 - Public Access System
Home Contact Us Guest Book Map Search New Search
Building Detail Results - Screen Produced   3/21/2026 10:27:14 AM 
 Account #:  R218051010 Bldg #1
Sketch

 Building #: 1
 Built As:  2 Story
 # of Stories:  2 Stories
 Square Feet:  1,896
 Year Built:  2021
 Remodel Year:   
 Building Name:   
 Alt Land Use Desc:  Platted
 Quality Desc:  Good
 Bldg Frame Description:  
 Foundation Desc:  Slab
 Bldg Exterior:  Frame Siding
 Roof Type:  Gable
 Roof Cover:   Composition Shingle
 Avg Floor Height:  8
 Percent Sprinkled:   
 Bldg Interior:  Drywall
 Total Rooms:  4
 # of Units w/Bedrooms: # of units (1) with 2 Bedrooms
 # of Baths:  (1)-Full, (1)-3/4, (1)-half
 HVAC Type:  Central Air to Air
 # of Fire Places:  0
 Percent Heated:  100
 Physical Condition:  Average
 # of Res Units:  1
 # of Comm Units:   
 Commercial Desc:   
 Occ Type:  0100
 Commercial Class:  R
 MFG Home Length:   
 MFG Home Width:   

Photos

2024 

2021 

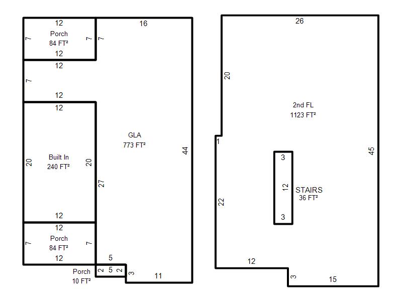
Garage, Porch, Basement, Storage, Utility etc.  (GLA=Gross Living Area    GBA=Gross Bldg Area)
Account # Feature Description Sqft/Area Number of Stories

R218051010

 GLA2

 2nd FL

1,123 

1

R218051010

 GLA

 GLA

773 

1

R218051010

 GarBuiltIn

 Built In

240 

1

R218051010

 PorWood R

 Porch

84 

1

R218051010

 PorWood R

 Porch

10 

1

Additional Details
Account #: Bldg # Description Qty # Of Units Description

R218051010

1

Allowance

1

Units

R218051010

1

Laundry Facility

1

Square Feet

R218051010

1

Miscellaneous

1

36 

Square Feet