Larry Stein Oklahoma County Assessor (405) 713-1200 - Public Access System
Home Contact Us Guest Book Map Search New Search
Building Detail Results - Screen Produced   4/12/2026 1:14:28 PM 
 Account #:  R269184080 Bldg #1
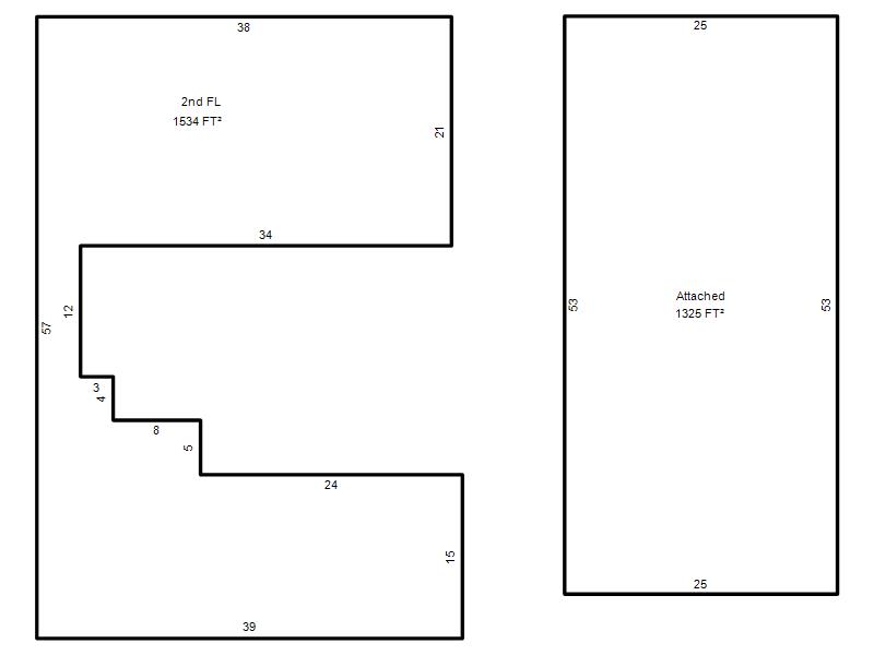
Sketch

 Building #: 1
 Built As:  Permit Value
 # of Stories:  
 Square Feet:  1,534
 Year Built:  2025
 Remodel Year:   
 Building Name:   
 Alt Land Use Desc:   
 Quality Desc:  Excellent
 Bldg Frame Description:  
 Foundation Desc:  Slab
 Bldg Exterior:  
 Roof Type:  Gable
 Roof Cover:   Composition Shingle
 Avg Floor Height:  8
 Percent Sprinkled:   
 Bldg Interior:  Drywall
 Total Rooms:  9
 # of Units w/Bedrooms: # of units (1) with 5 Bedrooms
 # of Baths:  (3)-Full, (1)-3/4, (1)-half
 HVAC Type:  Central Air to Air
 # of Fire Places:  1
 Percent Heated:  100
 Physical Condition:  Average
 # of Res Units:  1
 # of Comm Units:   
 Commercial Desc:   
 Occ Type:  0100
 Commercial Class:  R
 MFG Home Length:   
 MFG Home Width:   

Photos

No records returned.
Garage, Porch, Basement, Storage, Utility etc.  (GLA=Gross Living Area    GBA=Gross Bldg Area)
Account # Feature Description Sqft/Area Number of Stories

R269184080

 GLA2

 2nd FL

1,534 

1

R269184080

 GarAttach

 Attached

1,325 

1

Additional Details
Account #: Bldg # Description Qty # Of Units Description
No records returned.