Larry Stein Oklahoma County Assessor (405) 713-1200 - Public Access System
Home Contact Us Guest Book Map Search New Search
Building Detail Results - Screen Produced   4/30/2026 5:21:17 AM 
 Account #:  R142034057 Bldg #1
Sketch

 Building #: 1
 Built As:  Miscellaneous Imps CM
 # of Stories:  
 Square Feet:   
 Year Built:  1985
 Remodel Year:   
 Building Name:  UNOCCUPIED
 Alt Land Use Desc:  Unplatted Commercial
 Quality Desc:  Average
 Bldg Frame Description:  
 Foundation Desc:  
 Bldg Exterior:  
 Roof Type:  
 Roof Cover:  
 Avg Floor Height:   
 Percent Sprinkled:   
 Bldg Interior:  
 Total Rooms:   
 # of Units w/Bedrooms: # of units ( ) with   Bedrooms
 # of Baths:  ( )-Full, ( )-3/4, ( )-half
 HVAC Type:  
 # of Fire Places:   
 Percent Heated:   
 Physical Condition:  Average
 # of Res Units:   
 # of Comm Units:   
 Commercial Desc:   
 Occ Type:  1603
 Commercial Class:  C
 MFG Home Length:   
 MFG Home Width:   

Photos

No records returned.
Garage, Porch, Basement, Storage, Utility etc.  (GLA=Gross Living Area    GBA=Gross Bldg Area)
Account # Feature Description Sqft/Area Number of Stories
No additional building details returned.
Additional Details
Account #: Bldg # Description Qty # Of Units Description

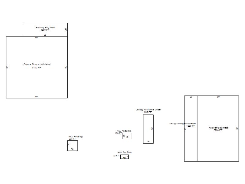
R142034057

1

Ancillary Bldg Metal

1

1,300 

Square Feet

R142034057

1

Ancillary Bldg Metal

1

5,760 

Square Feet

R142034057

1

Canopy - CM Drive Under

1

630 

Square Feet

R142034057

1

Canopy Storage Unfinished

1

1,920 

Square Feet

R142034057

1

Canopy Storage Unfinished

1

8,100 

Square Feet

R142034057

1

NAV Anc Bldg

1

108 

Square Feet

R142034057

1

NAV Anc Bldg

1

225 

Square Feet

R142034057

1

NAV Anc Bldg

1

72 

Square Feet

R142034057

1

Railroad Spur

1

1,200 

Linear Feet

R142034057

1

Yard Paving Concrete Unsketched

1

48,000 

Square Feet

R142034057

1

Yard Paving Gravel Unsketched

1

33,000 

Square Feet