Larry Stein Oklahoma County Assessor (405) 713-1200 - Public Access System
Home Contact Us Guest Book Map Search New Search
Building Detail Results - Screen Produced   3/28/2026 1:13:53 PM 
 Account #:  R218811170 Bldg #1
Sketch

 Building #: 1
 Built As:  2 Story
 # of Stories:  2 Stories
 Square Feet:  5,057
 Year Built:  2024
 Remodel Year:   
 Building Name:   
 Alt Land Use Desc:  Platted
 Quality Desc:  Very Good
 Bldg Frame Description:  
 Foundation Desc:  Slab
 Bldg Exterior:  Frame Brick Veneer
 Roof Type:  Gable/Hip
 Roof Cover:   Composition Shingle
 Avg Floor Height:  8
 Percent Sprinkled:   
 Bldg Interior:  Drywall
 Total Rooms:  13
 # of Units w/Bedrooms: # of units (1) with 5 Bedrooms
 # of Baths:  (2)-Full, (3)-3/4, (1)-half
 HVAC Type:  Central Air to Air
 # of Fire Places:  1
 Percent Heated:  100
 Physical Condition:  Average
 # of Res Units:  1
 # of Comm Units:   
 Commercial Desc:   
 Occ Type:  0100
 Commercial Class:  R
 MFG Home Length:   
 MFG Home Width:   

Photos

2024 

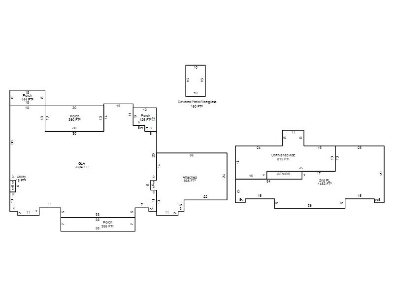
Garage, Porch, Basement, Storage, Utility etc.  (GLA=Gross Living Area    GBA=Gross Bldg Area)
Account # Feature Description Sqft/Area Number of Stories

R218811170

 GLA

 GLA

3,604 

1

R218811170

 GLA2

 2nd FL

1,453 

1

R218811170

 GarAttach

 Attached

985 

1

R218811170

 UA

 Unfinished Attic

815 

1

R218811170

 PorWood R

 Porch

390 

1

R218811170

 PorWood R

 Porch

266 

1

R218811170

 PorWood R

 Porch

144 

1

R218811170

 PorWood R

 Porch

126 

1

R218811170

 StoUtilWd

 Utility

18 

1

Additional Details
Account #: Bldg # Description Qty # Of Units Description

R218811170

1

Allowance

1

Units

R218811170

1

Covered Patio Fiberglass

1

160 

Square Feet

R218811170

1

Driveway Slab

1

600 

Square Feet

R218811170

1

Hot Tub

1

Units

R218811170

1

Laundry Facility

1

Square Feet

R218811170

1

Swimming Pool

1

612 

Square Feet