Larry Stein Oklahoma County Assessor (405) 713-1200 - Public Access System
Home Contact Us Guest Book Map Search New Search
Building Detail Results - Screen Produced   3/12/2026 4:06:42 AM 
 Account #:  R219321290 Bldg #1
Sketch

 Building #: 1
 Built As:  Townhouse One Story
 # of Stories:  1 Stories
 Square Feet:  1,600
 Year Built:  2025
 Remodel Year:   
 Building Name:   
 Alt Land Use Desc:   
 Quality Desc:  Average
 Bldg Frame Description:  
 Foundation Desc:  Slab
 Bldg Exterior:  Frame Masonry Veneer
 Roof Type:  Hip/Gable
 Roof Cover:   Composition Shingle
 Avg Floor Height:  8
 Percent Sprinkled:   
 Bldg Interior:  Drywall
 Total Rooms:  5
 # of Units w/Bedrooms: # of units (1) with 3 Bedrooms
 # of Baths:  (1)-Full, (1)-3/4, (0)-half
 HVAC Type:  Central Air to Air
 # of Fire Places:  1
 Percent Heated:  100
 Physical Condition:  Average
 # of Res Units:  1
 # of Comm Units:   
 Commercial Desc:   
 Occ Type:  0108
 Commercial Class:  TH
 MFG Home Length:   
 MFG Home Width:   

Photos

No records returned.
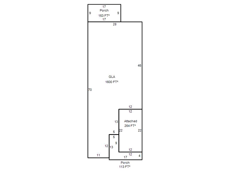
Garage, Porch, Basement, Storage, Utility etc.  (GLA=Gross Living Area    GBA=Gross Bldg Area)
Account # Feature Description Sqft/Area Number of Stories

R219321290

 GLA

 GLA

1,600 

1

R219321290

 GarAttach

 Attached

264 

1

R219321290

 PorWood R

 Porch

153 

1

R219321290

 PorWood R

 Porch

113 

1

Additional Details
Account #: Bldg # Description Qty # Of Units Description

R219321290

1

Allowance

1

Units

R219321290

1

Laundry Facility

1

Square Feet