Larry Stein Oklahoma County Assessor (405) 713-1200 - Public Access System
Home Contact Us Guest Book Map Search New Search
Building Detail Results - Screen Produced   5/6/2026 12:01:12 AM 
 Account #:  R140928055 Bldg #1
Sketch

 Building #: 1
 Built As:  Indoor Tennis Club
 # of Stories:  1 Stories
 Square Feet:  38,610
 Year Built:  2024
 Remodel Year:   
 Building Name:  OKLAHOMA PEAK/ BOOM BOX BEACH CLUB
 Alt Land Use Desc:  Unplatted Commercial
 Quality Desc:  Good Plus
 Bldg Frame Description:  Metal Frame
 Foundation Desc:  Slab
 Bldg Exterior:  Frame Corrugated Metal
 Roof Type:  Shed
 Roof Cover:   Metal Ribbed
 Avg Floor Height:  25
 Percent Sprinkled:   
 Bldg Interior:  
 Total Rooms:   
 # of Units w/Bedrooms: # of units ( ) with   Bedrooms
 # of Baths:  ( )-Full, ( )-3/4, ( )-half
 HVAC Type:  Package Unit
 # of Fire Places:   
 Percent Heated:  100
 Physical Condition:  Very Good
 # of Res Units:   
 # of Comm Units:  2
 Commercial Desc:   
 Occ Type:  0416
 Commercial Class:  C
 MFG Home Length:   
 MFG Home Width:   

Photos

No records returned.
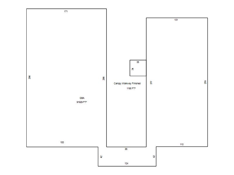
Garage, Porch, Basement, Storage, Utility etc.  (GLA=Gross Living Area    GBA=Gross Bldg Area)
Account # Feature Description Sqft/Area Number of Stories

R140928055

 GBA

 GBA

38,610 

1

Additional Details
Account #: Bldg # Description Qty # Of Units Description

R140928055

1

Canopy Walkway Finished

1

1,190 

Square Feet

R140928055

1

Yard Paving Concrete Unsketched

1

56,280 

Square Feet

R140928055

1

Yard Paving Concrete Unsketched

1

75,925 

Square Feet