Larry Stein Oklahoma County Assessor (405) 713-1200 - Public Access System
Home Contact Us Guest Book Map Search New Search
Building Detail Results - Screen Produced   3/12/2026 3:40:10 PM 
 Account #:  P3609740 Bldg #1
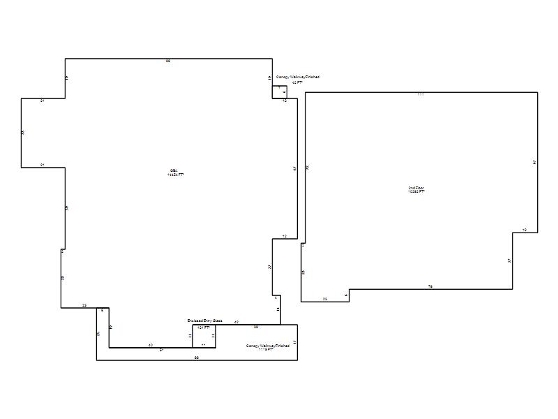
Sketch

 Building #: 1
 Built As:  Medical Offices
 # of Stories:  2 Stories
 Square Feet:  24,746
 Year Built:  2023
 Remodel Year:   
 Building Name:  PREMIER BREAST HEALTH INSTITUTE
 Alt Land Use Desc:  Separately Owned Imps on Exempt Land
 Quality Desc:  Very Good
 Bldg Frame Description:  Masonry
 Foundation Desc:  Slab
 Bldg Exterior:  Frame Stucco
 Roof Type:  Flat
 Roof Cover:   Elastomeric
 Avg Floor Height:  16
 Percent Sprinkled:  100
 Bldg Interior:  Drywall
 Total Rooms:   
 # of Units w/Bedrooms: # of units ( ) with   Bedrooms
 # of Baths:  ( )-Full, ( )-3/4, ( )-half
 HVAC Type:  Package Unit
 # of Fire Places:   
 Percent Heated:  100
 Physical Condition:  Very Good
 # of Res Units:  0
 # of Comm Units:  1
 Commercial Desc:   
 Occ Type:  0341
 Commercial Class:  C
 MFG Home Length:   
 MFG Home Width:   

Photos

2024 

2023 

Garage, Porch, Basement, Storage, Utility etc.  (GLA=Gross Living Area    GBA=Gross Bldg Area)
Account # Feature Description Sqft/Area Number of Stories

P3609740

 GBA

 GBA

14,454 

1

P3609740

 GBA2

 2nd Floor

10,292 

1

Additional Details
Account #: Bldg # Description Qty # Of Units Description

P3609740

1

Canopy Walkway Finished

1

1,119 

Square Feet

P3609740

1

Canopy Walkway Finished

1

42 

Square Feet

P3609740

1

Dumpster Enclosure

1

Units

P3609740

1

Elevator Psngr. Office 2 - 3 flrs

1

Units

P3609740

1

Enclosed Entry Glass

1

121 

Square Feet

P3609740

1

Yard Paving Blacktop Unsketched

1

45,000 

Square Feet