Larry Stein Oklahoma County Assessor (405) 713-1200 - Public Access System
Home Contact Us Guest Book Map Search New Search
Building Detail Results - Screen Produced   4/27/2026 4:28:14 PM 
 Account #:  R220321050 Bldg #1
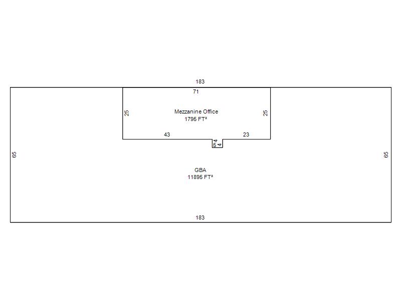
Sketch

 Building #: 1
 Built As:  Fitness Center
 # of Stories:  1 Stories
 Square Feet:  11,895
 Year Built:  2025
 Remodel Year:   
 Building Name:  KODA GYM
 Alt Land Use Desc:  Platted Commercial
 Quality Desc:  Good
 Bldg Frame Description:  Metal Frame
 Foundation Desc:  Slab
 Bldg Exterior:  Metal Siding
 Roof Type:  Shed
 Roof Cover:   Formed Seam Metal
 Avg Floor Height:  20
 Percent Sprinkled:  0
 Bldg Interior:  
 Total Rooms:   
 # of Units w/Bedrooms: # of units ( ) with   Bedrooms
 # of Baths:  ( )-Full, ( )-3/4, ( )-half
 HVAC Type:  Package Unit
 # of Fire Places:   
 Percent Heated:  100
 Physical Condition:  Very Good
 # of Res Units:   
 # of Comm Units:  1
 Commercial Desc:   
 Occ Type:  0483
 Commercial Class:  C
 MFG Home Length:   
 MFG Home Width:   

Photos

No records returned.
Garage, Porch, Basement, Storage, Utility etc.  (GLA=Gross Living Area    GBA=Gross Bldg Area)
Account # Feature Description Sqft/Area Number of Stories

R220321050

 GBA

 GBA

11,895 

1

Additional Details
Account #: Bldg # Description Qty # Of Units Description

R220321050

1

Mezzanine Office

1

1,795 

Square Feet