Larry Stein Oklahoma County Assessor (405) 713-1200 - Public Access System
Home Contact Us Guest Book Map Search New Search
Building Detail Results - Screen Produced   4/25/2026 8:04:59 PM 
 Account #:  R257151020 Bldg #1
Sketch

 Building #: 1
 Built As:  Misc Imp - Res
 # of Stories:  1 Stories
 Square Feet:   
 Year Built:  2005
 Remodel Year:   
 Building Name:   
 Alt Land Use Desc:  Agricultural Land
 Quality Desc:  Average
 Bldg Frame Description:  
 Foundation Desc:  
 Bldg Exterior:  Frame Siding Misc
 Roof Type:  
 Roof Cover:  
 Avg Floor Height:  0
 Percent Sprinkled:  0
 Bldg Interior:  
 Total Rooms:   
 # of Units w/Bedrooms: # of units ( ) with   Bedrooms
 # of Baths:  (0)-Full, (0)-3/4, (0)-half
 HVAC Type:  Central Air to Air
 # of Fire Places:  0
 Percent Heated:  100
 Physical Condition:  Average
 # of Res Units:  0
 # of Comm Units:  0
 Commercial Desc:   
 Occ Type:  0503
 Commercial Class:  R
 MFG Home Length:  0
 MFG Home Width:  0

Photos

No records returned.
Garage, Porch, Basement, Storage, Utility etc.  (GLA=Gross Living Area    GBA=Gross Bldg Area)
Account # Feature Description Sqft/Area Number of Stories
No additional building details returned.
Additional Details
Account #: Bldg # Description Qty # Of Units Description

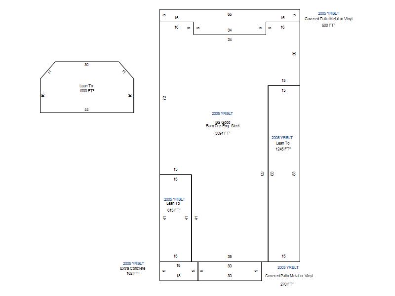
R257151020

1

Barn Pre-Eng. Steel

1

5,394 

Square Feet

R257151020

1

Covered Patio Metal or Vinyl

1

270 

Square Feet

R257151020

1

Covered Patio Metal or Vinyl

1

600 

Square Feet

R257151020

1

Extra Concrete

1

162 

Square Feet

R257151020

1

Lean To

1

1,000 

Square Feet

R257151020

1

Lean To

1

1,245 

Square Feet

R257151020

1

Lean To

1

615 

Square Feet