Larry Stein Oklahoma County Assessor (405) 713-1200 - Public Access System
Home Contact Us Guest Book Map Search New Search
Building Detail Results - Screen Produced   3/14/2026 9:58:40 AM 
 Account #:  R144447040 Bldg #1
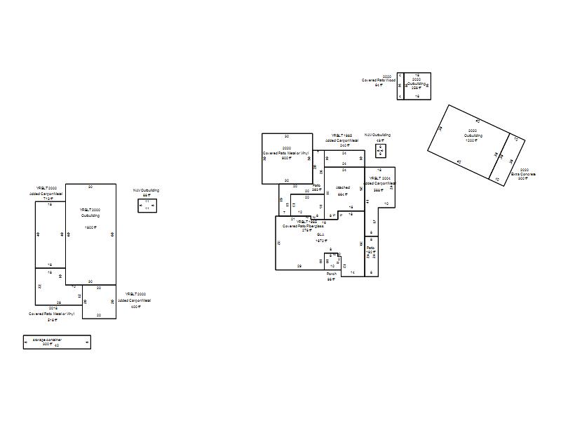
Sketch

 Building #: 1
 Built As:  Ranch 1 Story
 # of Stories:  1 Stories
 Square Feet:  1,672
 Year Built:  1985
 Remodel Year:   
 Building Name:   
 Alt Land Use Desc:  Unplatted Under 5 Acres
 Quality Desc:  Average
 Bldg Frame Description:  
 Foundation Desc:  Slab
 Bldg Exterior:  Frame Masonry Veneer
 Roof Type:  Hip
 Roof Cover:   Composition Shingle
 Avg Floor Height:  8
 Percent Sprinkled:  0
 Bldg Interior:  Drywall
 Total Rooms:  6
 # of Units w/Bedrooms: # of units (1) with 3 Bedrooms
 # of Baths:  (1)-Full, (1)-3/4, (0)-half
 HVAC Type:  Central Air to Air
 # of Fire Places:  1
 Percent Heated:  100
 Physical Condition:  Average
 # of Res Units:  1
 # of Comm Units:  0
 Commercial Desc:   
 Occ Type:  0100
 Commercial Class:  R
 MFG Home Length:  0
 MFG Home Width:  0

Photos

2022 

2018 

2014 

2010 

2005 

Garage, Porch, Basement, Storage, Utility etc.  (GLA=Gross Living Area    GBA=Gross Bldg Area)
Account # Feature Description Sqft/Area Number of Stories

R144447040

 GLA

 GLA

1,672 

1

R144447040

 GarAttach

 Attached

664 

1

R144447040

 PorOpenSl

 Patio

393 

1

R144447040

 PorOpenSl

 Patio

192 

1

R144447040

 PorWood R

 Porch

96 

1

Additional Details
Account #: Bldg # Description Qty # Of Units Description

R144447040

1

Added Carport Metal

1

240 

Square Feet

R144447040

1

Added Carport Metal

1

400 

Square Feet

R144447040

1

Added Carport Metal

1

568 

Square Feet

R144447040

1

Added Carport Metal

1

713 

Square Feet

R144447040

1

Allowance

1

Units

R144447040

1

Covered Patio Fiberglass

1

276 

Square Feet

R144447040

1

Covered Patio Metal or Vinyl

1

516 

Square Feet

R144447040

1

Covered Patio Metal or Vinyl

1

900 

Square Feet

R144447040

1

Covered Patio Wood

1

64 

Square Feet

R144447040

1

Extra Concrete

1

300 

Square Feet

R144447040

1

Laundry Facility

1

Square Feet

R144447040

1

Miscellaneous

1

320 

Square Feet

R144447040

1

NAV Outbuilding

1

48 

Square Feet

R144447040

1

NAV Outbuilding

1

88 

Square Feet

R144447040

1

Outbuilding

1

1,200 

Square Feet

R144447040

1

Outbuilding

1

1,800 

Square Feet

R144447040

1

Outbuilding

1

256 

Square Feet

R144447040

1

Swimming Pool

1

640 

Square Feet