Larry Stein Oklahoma County Assessor (405) 713-1200 - Public Access System
Home Contact Us Guest Book Map Search New Search
Building Detail Results - Screen Produced   3/13/2026 6:44:57 AM 
 Account #:  R194785260 Bldg #1
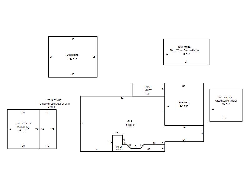
Sketch

 Building #: 1
 Built As:  Ranch 1 Story
 # of Stories:  1 Stories
 Square Feet:  1,860
 Year Built:  1976
 Remodel Year:   
 Building Name:   
 Alt Land Use Desc:  Agricultural Land
 Quality Desc:  Average
 Bldg Frame Description:  
 Foundation Desc:  Slab
 Bldg Exterior:  Frame Masonry Veneer
 Roof Type:  Gable
 Roof Cover:   Composition Shingle
 Avg Floor Height:  8
 Percent Sprinkled:  0
 Bldg Interior:  Drywall
 Total Rooms:  5
 # of Units w/Bedrooms: # of units (1) with 3 Bedrooms
 # of Baths:  (2)-Full, (0)-3/4, (0)-half
 HVAC Type:  Central Air to Air
 # of Fire Places:  1
 Percent Heated:  100
 Physical Condition:  Average
 # of Res Units:  1
 # of Comm Units:  0
 Commercial Desc:   
 Occ Type:  0100
 Commercial Class:  R
 MFG Home Length:  0
 MFG Home Width:  0

Photos

2023 

2019 

2015 

2010 

2008 

2006 

Garage, Porch, Basement, Storage, Utility etc.  (GLA=Gross Living Area    GBA=Gross Bldg Area)
Account # Feature Description Sqft/Area Number of Stories

R194785260

 GLA

 GLA

1,860 

1

R194785260

 GarAttach

 Attached

624 

1

R194785260

 PorWood R

 Porch

160 

1

R194785260

 PorWood R

 Porch

148 

1

Additional Details
Account #: Bldg # Description Qty # Of Units Description

R194785260

1

Added Carport Metal

1

400 

Square Feet

R194785260

1

Allowance

1

Units

R194785260

1

Barn, Wood, Pole and Metal

1

448 

Square Feet

R194785260

1

Covered Patio Metal or Vinyl

1

240 

Square Feet

R194785260

1

Laundry Facility

1

Square Feet

R194785260

1

Outbuilding

1

480 

Square Feet

R194785260

1

Outbuilding

1

750 

Square Feet