Larry Stein Oklahoma County Assessor (405) 713-1200 - Public Access System
Home Contact Us Guest Book Map Search New Search
Building Detail Results - Screen Produced   3/18/2026 5:42:35 AM 
 Account #:  R091471140 Bldg #1
Sketch

 Building #: 1
 Built As:  Ranch 1 Story
 # of Stories:  1 Stories
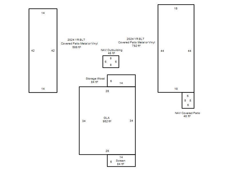
 Square Feet:  952
 Year Built:  1931
 Remodel Year:   
 Building Name:   
 Alt Land Use Desc:  Platted
 Quality Desc:  Fair
 Bldg Frame Description:  
 Foundation Desc:  Conventional
 Bldg Exterior:  Frame Masonry Veneer
 Roof Type:  Hip/Gable
 Roof Cover:   Composition Shingle
 Avg Floor Height:  8
 Percent Sprinkled:  0
 Bldg Interior:  Drywall
 Total Rooms:  4
 # of Units w/Bedrooms: # of units (1) with 2 Bedrooms
 # of Baths:  (1)-Full, (0)-3/4, (0)-half
 HVAC Type:  Floor Wall Furnace
 # of Fire Places:  0
 Percent Heated:  100
 Physical Condition:  Average
 # of Res Units:  1
 # of Comm Units:  0
 Commercial Desc:   
 Occ Type:  0100
 Commercial Class:  R
 MFG Home Length:  0
 MFG Home Width:  0

Photos

2021 

2017 

2013 

2009 

2005 

Garage, Porch, Basement, Storage, Utility etc.  (GLA=Gross Living Area    GBA=Gross Bldg Area)
Account # Feature Description Sqft/Area Number of Stories

R091471140

 GLA

 GLA

952 

1

R091471140

 PorScreen

 Screen

84 

1

R091471140

 StoWood

 Storage Wood

84 

1

Additional Details
Account #: Bldg # Description Qty # Of Units Description

R091471140

1

Allowance

1

Units

R091471140

1

Covered Patio Metal or Vinyl

1

588 

Square Feet

R091471140

1

Covered Patio Metal or Vinyl

1

792 

Square Feet

R091471140

1

Laundry Facility

1

Square Feet

R091471140

1

NAV Covered Patio

1

48 

Square Feet

R091471140

1

NAV Outbuilding

1

48 

Square Feet