Larry Stein Oklahoma County Assessor (405) 713-1200 - Public Access System
Home Contact Us Guest Book Map Search New Search
Building Detail Results - Screen Produced   3/20/2026 3:33:02 PM 
 Account #:  R093991185 Bldg #1
Sketch

 Building #: 1
 Built As:  Indust Lght Manufacturing
 # of Stories:  1 Stories
 Square Feet:  8,470
 Year Built:  1975
 Remodel Year:  1985
 Building Name:  JOHNSTON TEST CELL
 Alt Land Use Desc:  Platted Commercial
 Quality Desc:  Fair Plus
 Bldg Frame Description:  Metal Frame
 Foundation Desc:  Slab
 Bldg Exterior:  Metal Siding
 Roof Type:  Gable
 Roof Cover:   Preformed Metal
 Avg Floor Height:  14
 Percent Sprinkled:  0
 Bldg Interior:  
 Total Rooms:   
 # of Units w/Bedrooms: # of units ( ) with   Bedrooms
 # of Baths:  (0)-Full, (0)-3/4, (0)-half
 HVAC Type:  Space Heater
 # of Fire Places:  0
 Percent Heated:  100
 Physical Condition:  Average
 # of Res Units:  0
 # of Comm Units:  1
 Commercial Desc:   
 Occ Type:  0334
 Commercial Class:  C
 MFG Home Length:  0
 MFG Home Width:  0

Photos

2021 

2019 

2017 

2009 

2007 

2005 

2003 

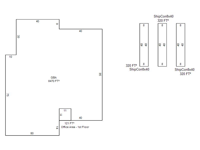
Garage, Porch, Basement, Storage, Utility etc.  (GLA=Gross Living Area    GBA=Gross Bldg Area)
Account # Feature Description Sqft/Area Number of Stories

R093991185

 GBA

 GBA

8,470 

1

Additional Details
Account #: Bldg # Description Qty # Of Units Description

R093991185

1

Fence Chain Link 6` + Brb Wire

1

680 

Linear Feet

R093991185

1

Office Area - 1st Floor

1

121 

Square Feet

R093991185

1

ShipCon8x40

1

320 

Square Feet

R093991185

1

Yard Paving Concrete Unsketched

1

2,700 

Square Feet

R093991185

1

Yard Paving Gravel Unsketched

1

3,000 

Square Feet