Larry Stein Oklahoma County Assessor (405) 713-1200 - Public Access System
Home Contact Us Guest Book Map Search New Search
Building Detail Results - Screen Produced   3/30/2026 5:50:13 AM 
 Account #:  R105564420 Bldg #1
Sketch

 Building #: 1
 Built As:  Office Style Box C or D
 # of Stories:  1 Stories
 Square Feet:  1,600
 Year Built:  1974
 Remodel Year:   
 Building Name:  AAA LOANS / ACE LOANS
 Alt Land Use Desc:  Platted Commercial
 Quality Desc:  Fair
 Bldg Frame Description:  Wood Frame
 Foundation Desc:  
 Bldg Exterior:  Frame Stone Veneer
 Roof Type:  Hip
 Roof Cover:   Composition Shingle
 Avg Floor Height:  10
 Percent Sprinkled:  0
 Bldg Interior:  
 Total Rooms:   
 # of Units w/Bedrooms: # of units ( ) with   Bedrooms
 # of Baths:  (0)-Full, (0)-3/4, (0)-half
 HVAC Type:  Package Unit
 # of Fire Places:  0
 Percent Heated:  100
 Physical Condition:  Average
 # of Res Units:  0
 # of Comm Units:  2
 Commercial Desc:   
 Occ Type:  3447
 Commercial Class:  C
 MFG Home Length:  0
 MFG Home Width:  0

Photos

2023 

2019 

2015 

2011 

2008 

2005 

2001 

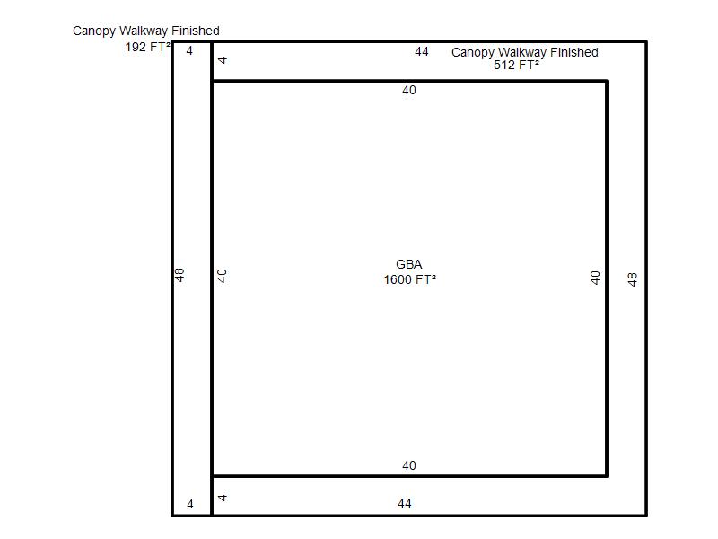
Garage, Porch, Basement, Storage, Utility etc.  (GLA=Gross Living Area    GBA=Gross Bldg Area)
Account # Feature Description Sqft/Area Number of Stories

R105564420

 GBA

 GBA

1,600 

1

Additional Details
Account #: Bldg # Description Qty # Of Units Description

R105564420

1

Canopy Walkway Finished

1

192 

Square Feet

R105564420

1

Canopy Walkway Finished

1

512 

Square Feet

R105564420

1

Yard Paving Concrete Unsketched

1

8,375 

Square Feet