Larry Stein Oklahoma County Assessor (405) 713-1200 - Public Access System
Home Contact Us Guest Book Map Search New Search
Building Detail Results - Screen Produced   3/26/2026 11:32:43 AM 
 Account #:  R105565550 Bldg #1
Sketch

 Building #: 1
 Built As:  1½ Story Fin
 # of Stories:  1.5 Stories
 Square Feet:  1,996
 Year Built:  1908
 Remodel Year:  2019
 Building Name:   
 Alt Land Use Desc:  Platted
 Quality Desc:  Fair
 Bldg Frame Description:  
 Foundation Desc:  Conventional
 Bldg Exterior:  Frame Stucco
 Roof Type:  Gable
 Roof Cover:   Composition Shingle
 Avg Floor Height:  8
 Percent Sprinkled:  0
 Bldg Interior:  Drywall
 Total Rooms:  7
 # of Units w/Bedrooms: # of units (1) with 4 Bedrooms
 # of Baths:  (1)-Full, (0)-3/4, (1)-half
 HVAC Type:  Floor Wall Furnace
 # of Fire Places:  0
 Percent Heated:  100
 Physical Condition:  Average
 # of Res Units:  1
 # of Comm Units:  0
 Commercial Desc:   
 Occ Type:  0100
 Commercial Class:  R
 MFG Home Length:  0
 MFG Home Width:  0

Photos

2021 

2017 

2013 

2009 

2005 

2003 

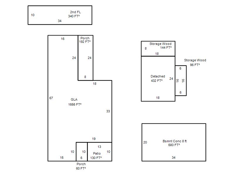
Garage, Porch, Basement, Storage, Utility etc.  (GLA=Gross Living Area    GBA=Gross Bldg Area)
Account # Feature Description Sqft/Area Number of Stories

R105565550

 GLA

 GLA

1,656 

1

R105565550

 BsmtC8ft

 Bsmnt Conc 8 ft

680 

1

R105565550

 GarDetach

 Detached

432 

1

R105565550

 GLA2

 2nd FL

340 

1

R105565550

 PorWood R

 Porch

192 

1

R105565550

 StoWood

 Storage Wood

144 

1

R105565550

 PorOpenSl

 Patio

130 

1

R105565550

 StoWood

 Storage Wood

96 

1

R105565550

 PorWood R

 Porch

60 

1

Additional Details
Account #: Bldg # Description Qty # Of Units Description

R105565550

1

Allowance

1

Units

R105565550

1

Laundry Facility

1

Square Feet