Larry Stein Oklahoma County Assessor (405) 713-1200 - Public Access System
Home Contact Us Guest Book Map Search New Search
Building Detail Results - Screen Produced   3/26/2026 11:32:43 AM 
 Account #:  R105566000 Bldg #1
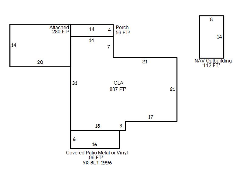
Sketch

 Building #: 1
 Built As:  Ranch 1 Story
 # of Stories:  1 Stories
 Square Feet:  887
 Year Built:  1910
 Remodel Year:  1996
 Building Name:   
 Alt Land Use Desc:  Platted
 Quality Desc:  Fair
 Bldg Frame Description:  
 Foundation Desc:  Conventional
 Bldg Exterior:  Frame Vinyl
 Roof Type:  Gable
 Roof Cover:   Composition Shingle
 Avg Floor Height:  8
 Percent Sprinkled:  0
 Bldg Interior:  Drywall
 Total Rooms:  5
 # of Units w/Bedrooms: # of units (1) with 2 Bedrooms
 # of Baths:  (1)-Full, (0)-3/4, (0)-half
 HVAC Type:  Floor Wall Furnace
 # of Fire Places:  0
 Percent Heated:  100
 Physical Condition:  Average
 # of Res Units:  1
 # of Comm Units:  0
 Commercial Desc:   
 Occ Type:  0100
 Commercial Class:  R
 MFG Home Length:  0
 MFG Home Width:  0

Photos

2021 

2017 

2013 

2009 

2005 

2003 

Garage, Porch, Basement, Storage, Utility etc.  (GLA=Gross Living Area    GBA=Gross Bldg Area)
Account # Feature Description Sqft/Area Number of Stories

R105566000

 GLA

 GLA

887 

1

R105566000

 GarAttach

 Attached

280 

1

R105566000

 PorWood R

 Porch

56 

1

Additional Details
Account #: Bldg # Description Qty # Of Units Description

R105566000

1

Allowance

1

Units

R105566000

1

Covered Patio Metal or Vinyl

1

96 

Square Feet

R105566000

1

Laundry Facility

1

Square Feet

R105566000

1

NAV Outbuilding

1

112 

Square Feet