Larry Stein Oklahoma County Assessor (405) 713-1200 - Public Access System
Home Contact Us Guest Book Map Search New Search
Building Detail Results - Screen Produced   3/22/2026 9:09:36 AM 
 Account #:  R086050355 Bldg #1
Sketch

 Building #: 1
 Built As:  1½ Story Fin
 # of Stories:  1.5 Stories
 Square Feet:  1,236
 Year Built:  1948
 Remodel Year:  2021
 Building Name:   
 Alt Land Use Desc:  Platted
 Quality Desc:  Fair
 Bldg Frame Description:  
 Foundation Desc:  Slab
 Bldg Exterior:  Frame Masonry Veneer
 Roof Type:  Gable
 Roof Cover:   Composition Shingle
 Avg Floor Height:  8
 Percent Sprinkled:  0
 Bldg Interior:  Drywall
 Total Rooms:  4
 # of Units w/Bedrooms: # of units (1) with 2 Bedrooms
 # of Baths:  (1)-Full, (0)-3/4, (1)-half
 HVAC Type:  Central Air to Air
 # of Fire Places:  0
 Percent Heated:  100
 Physical Condition:  Average
 # of Res Units:  0
 # of Comm Units:  0
 Commercial Desc:   
 Occ Type:  0100
 Commercial Class:  R
 MFG Home Length:  0
 MFG Home Width:  0

Photos

2022 

2021 

2020 

2019 

2018 

2017 

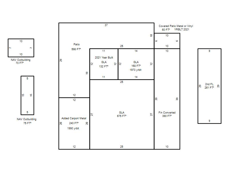
Garage, Porch, Basement, Storage, Utility etc.  (GLA=Gross Living Area    GBA=Gross Bldg Area)
Account # Feature Description Sqft/Area Number of Stories

R086050355

 GLA

 GLA

675 

1

R086050355

 PorOpenSl

 Patio

598 

1

R086050355

 GarFinConv

 Fin Converted

390 

1

R086050355

 GLA2

 2nd FL

261 

1

R086050355

 GLA

 GLA

168 

1

R086050355

 GLA

 GLA

132 

1

Additional Details
Account #: Bldg # Description Qty # Of Units Description

R086050355

1

Added Carport Metal

1

240 

Square Feet

R086050355

1

Allowance

1

Units

R086050355

1

Covered Patio Metal or Vinyl

1

60 

Square Feet

R086050355

1

Driveway Slab

1

1,000 

Square Feet

R086050355

1

Laundry Facility

1

Square Feet

R086050355

1

NAV Outbuilding

1

70 

Square Feet

R086050355

1

NAV Outbuilding

1

75 

Square Feet