Larry Stein Oklahoma County Assessor (405) 713-1200 - Public Access System
Home Contact Us Guest Book Map Search New Search
Building Detail Results - Screen Produced   3/15/2026 7:19:04 AM 
 Account #:  R074501020 Bldg #1
Sketch

 Building #: 1
 Built As:  Market
 # of Stories:  1 Stories
 Square Feet:  18,654
 Year Built:  2003
 Remodel Year:  2018
 Building Name:  ALDI FOOD STORE
 Alt Land Use Desc:  Platted Commercial
 Quality Desc:  Average Plus
 Bldg Frame Description:  Masonry
 Foundation Desc:  Slab
 Bldg Exterior:  Masonry Common Brick
 Roof Type:  Flat
 Roof Cover:   Built Up Rock
 Avg Floor Height:  16
 Percent Sprinkled:  100
 Bldg Interior:  
 Total Rooms:   
 # of Units w/Bedrooms: # of units ( ) with   Bedrooms
 # of Baths:  (0)-Full, (0)-3/4, (0)-half
 HVAC Type:  Package Unit
 # of Fire Places:  0
 Percent Heated:  100
 Physical Condition:  Good
 # of Res Units:  0
 # of Comm Units:  1
 Commercial Desc:   
 Occ Type:  0340
 Commercial Class:  C
 MFG Home Length:  0
 MFG Home Width:  0

Photos

2023 

2019 

2015 

2011 

2009 

2004 

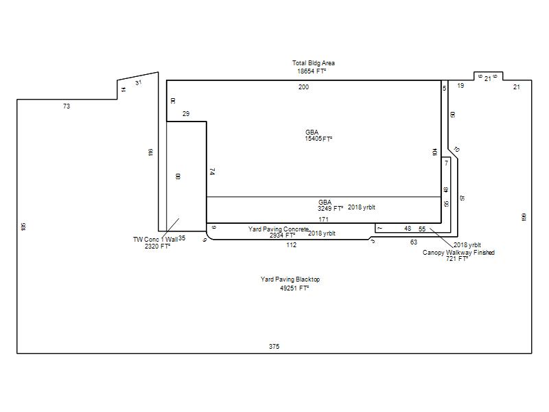
Garage, Porch, Basement, Storage, Utility etc.  (GLA=Gross Living Area    GBA=Gross Bldg Area)
Account # Feature Description Sqft/Area Number of Stories

R074501020

 GBA

 GBA

18,654 

1

Additional Details
Account #: Bldg # Description Qty # Of Units Description

R074501020

1

Canopy Walkway Finished

1

721 

Square Feet

R074501020

1

Dock Levelor

1

Units

R074501020

1

Truck Well Conc 1 Wall

1

2,320 

Square Feet

R074501020

1

Yard Paving Blacktop

1

49,251 

Square Feet

R074501020

1

Yard Paving Concrete

1

2,934 

Square Feet