Larry Stein Oklahoma County Assessor (405) 713-1200 - Public Access System
Home Contact Us Guest Book Map Search New Search
Building Detail Results - Screen Produced   3/12/2026 1:05:27 AM 
 Account #:  R209111080 Bldg #1
Sketch

 Building #: 1
 Built As:  Indust Lght Manufacturing
 # of Stories:  1 Stories
 Square Feet:  12,000
 Year Built:  2021
 Remodel Year:   
 Building Name:  BYERLEY SERVICES
 Alt Land Use Desc:  Platted Commercial
 Quality Desc:  Average
 Bldg Frame Description:  Metal Frame
 Foundation Desc:  Slab
 Bldg Exterior:  Metal Siding
 Roof Type:  Gable
 Roof Cover:   Formed Seam Metal
 Avg Floor Height:  16
 Percent Sprinkled:   
 Bldg Interior:  
 Total Rooms:   
 # of Units w/Bedrooms: # of units ( ) with   Bedrooms
 # of Baths:  ( )-Full, ( )-3/4, ( )-half
 HVAC Type:  Package Unit
 # of Fire Places:   
 Percent Heated:  100
 Physical Condition:  Very Good
 # of Res Units:   
 # of Comm Units:  1
 Commercial Desc:   
 Occ Type:  0334
 Commercial Class:  C
 MFG Home Length:   
 MFG Home Width:   

Photos

2022 

2021 

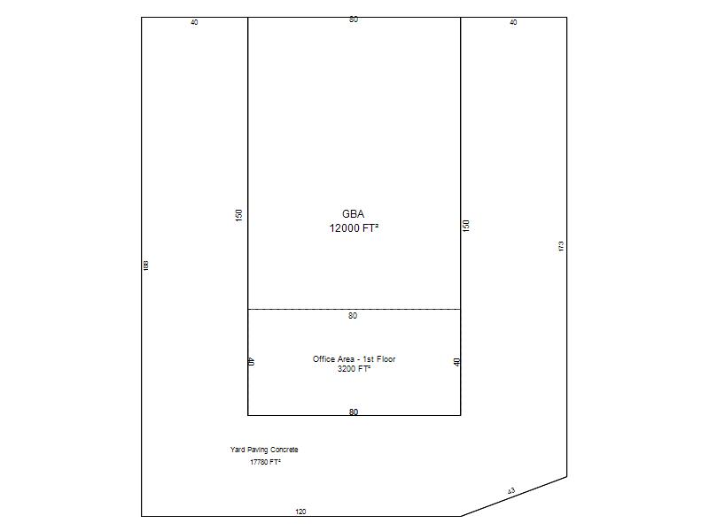
Garage, Porch, Basement, Storage, Utility etc.  (GLA=Gross Living Area    GBA=Gross Bldg Area)
Account # Feature Description Sqft/Area Number of Stories

R209111080

 GBA

 GBA

12,000 

1

Additional Details
Account #: Bldg # Description Qty # Of Units Description

R209111080

1

Fence Wrought Iron CM 6`

1

275 

Linear Feet

R209111080

1

Office Area - 1st Floor

1

3,200 

Square Feet

R209111080

1

Yard Paving Concrete

1

17,780 

Square Feet

R209111080

1

Yard Paving Concrete Unsketched

1

3,700 

Square Feet

R209111080

1

Yard Paving Gravel Unsketched

1

25,000 

Square Feet